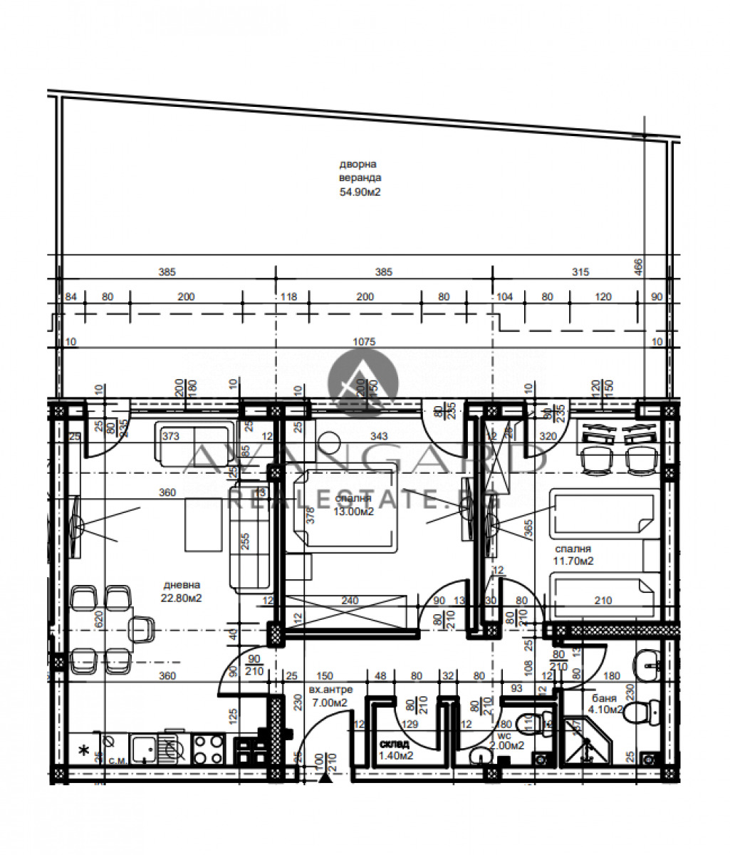
ПРЕД АКТ 16! ВЪЗМОЖНОСТ ЗА ЗАКУПУВАНЕ С КРЕДИТ! ДВОР 55КВ.М !! Предлагаме Ви да закупите ЧУДЕСЕН ТРИСТАЕН АПАРТАМЕНТ В НОВА МОДЕРНА СГРАДА ПРЕД АКТ 16! Имотът се състои от голям хол с кухненски бокс, две големи спални , баня с тоалетна , отделна тоалетна , килер , входно антре и двор 55кв.м . Жилището ще бъде издадено на степен завършеност шпакловка и замазка, което Ви позволява да го отремонтирате и обзаведете по Ваш собствен вкус. Намира се в близост до училища, детски градини, хранителни магазини, удобен градски транспорт и всичко необходимо за живеене, което го прави чудесен избор за Вашият нов дом и отлична инвестиция с цел отдаване под наем.
Авангард Риъл Естейт предлага Висока сигурност при покупка на имот и цялостно съдействие до финализиране на сделката пред нотариус. За контакт: email: [email protected]; За още актуални оферти: www.avangardrealestate.bg
Виж всички обяви в avangardimoti.bazar.bg или тук







