Сградата се състои от сутерен и 5 жилищни етажа. На сутеренния етаж са разположени два двойни и пет единични гаража. Партерът разполага със 17 паркоместа и 8 гаража. В сградата се предлагат общо 35 апартамента, от които четири са едностайни, деветнадесет са двустайни и дванадесет са тристайни. Изграждането на сградата гарантира за модерно и качествено строителство с висококачествени материали, със спазени съвременни европейски стандарти, с красива фасада и бутиково архитектурно изпълнение. Жилищната сграда е с отлична локация в близост до Националния исторически музей и Резиденция Бояна. Локацията осигурява също и лесен достъп до градски транспорт, само на метри от спирките на трамвай номер 5 и автобус 260, които водят директно до центъра на София.
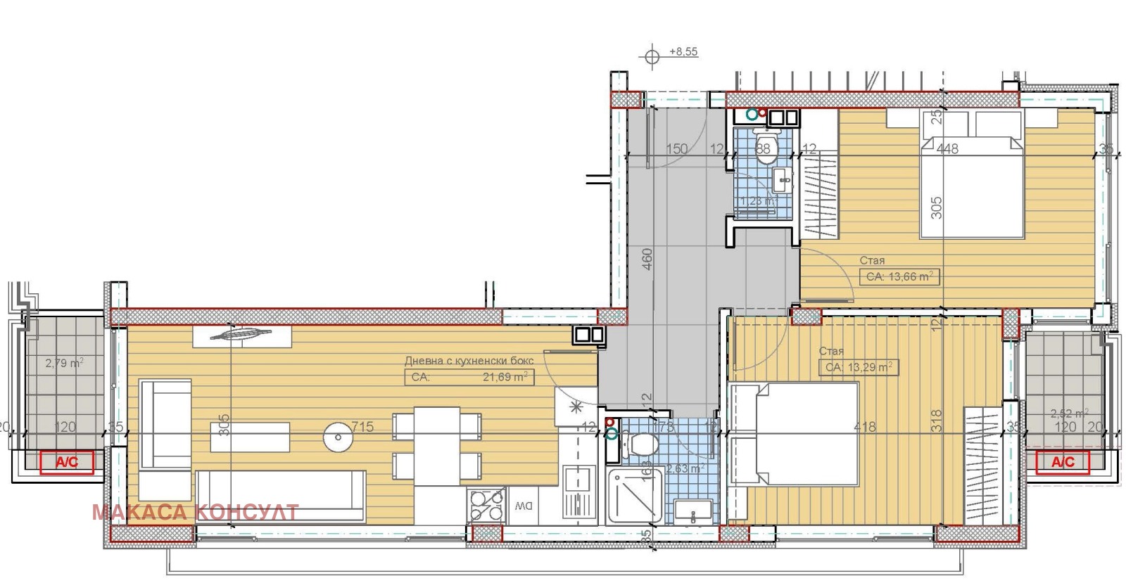
Тристайният апартамент, който предлагаме на вашето внимание разполага с входно антре, всекидневна с кухненски бокс, просторна спалня, детска спалня, баня с тоалетна, отделен втори санитарен възел, обширна тераса и мазе, включено в цената. Жилището е с изложение юг, север.
Не се колебайте, а запазете оглед на Вашия бъдещ нов дом! Позвънете на Вашия брокер от Макаса консулт или ни пишете за повече информация на e-mail: [email protected].
Макаса Консулт съдейства за отпускане на потребителски или ипотечен кредит от всички търговски банки при най - добри условия.
Ние сме насреща, за да удовлетворим Вашите желания!
Виж всички обяви в makasa.bazar.bg или тук
        
       
         
         
         
         
         
         
         
         
             
             
             
             
             
             
             
            






