ДО КЛЮЧ!
Строително - инвестиционна компания Глоб Строй ЕООД , представлявана от Джанер Каптан, Ви представя за продажба модерни и функционални апартаменти в нов жилищен комплекс ИННОВА , разполагащ с полуподземни гаражи, открити паркоместа, изби.
Перфектна локация в идеалния център на гр. Шумен, в перспективен и подходящ за млади семейства район. В непосредствена близост има атрактивни възможности да практикувате любим спорт отлични открити и тенис кортове, фитнес зали, алеи за раходка и др.забавления.
Eлегантен вътрешен двор с достъп само за собствениците, красива зелена територия, създаваща успокояваща атмосфера, на която всички обитатели да се любуват по всяко време.
ИННОВА предлага иновативни и зелени решения , които ще осигурят изключителни удобства и комфорт на своите обитатели.
Постигаме и най-високо ниво на лукс, чрез използването на първокласни довършителни материали и оборудване от водещи световни брандове.
Проектът се състои от 77 апартамента, разположени в три входа на 6 етажа с нисък % общи части,36 подземни гаража и 46 открити паркоместа.
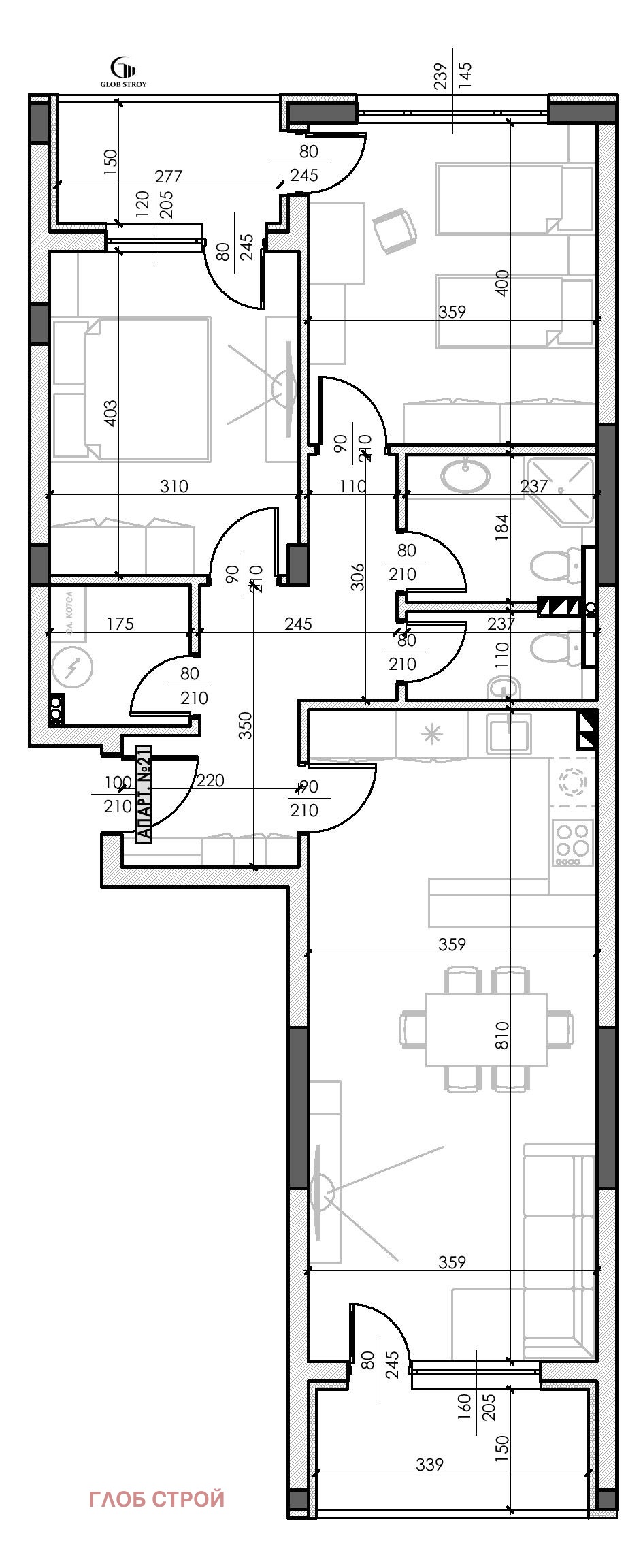
Ситуиран на шести жилищен етаж с изложение изток - запад. Състои се от просторна дневна, две спални, две бани с тоалетна, килер и две тераси. Жилището е с обща площ 123,09 кв.м., от които ЗП 97,65 кв.м., прилежаща изба с площ 7,01кв.м. и припадащи се общи части на сградата.
Апартамента се предлага завършен до ключ по следният начин:
Настилки от гранитогресни плочи (опция за светъл или тъмен вариант, по избор на купувача), фино шпакловани и боядисани с латекс стени и тавани, поставени ключове и контакти, поставени интериорни врати, напълно завършени бани и тоалетни с фаянс, душ кабини, тоалетни чинии с вградена структура, мивки и т.н.
Не са включени осветителни тела и мебели.
Външна фасада каменна вата, фасадни тухли Klinker
Подова изолация с XPS с най-високи топлоизолационни качества.
Подова шумоизолация със звукоизолираща мембрана ISOVER FONAS TEX положена на пода на апартамента;
Дограма произведена в Германия от KÖMMERLING с немски обков WINKHAUS, тройни стъклопакети 4 сезонно / бяло / Ка с аргон, 76 mm каса
Вътрешни стени и тавани - гипсова мазилка BAUMIT;
Стени на мокри помещения варо-циментова мазилка BAUMIT;
ВиК инсталация на апартаментите ще бъде изградена чрез пресфитингова система до тапа - с 10 години гаранция;
Захранващи водопроводни тръби до апартамента, система от неръждаема стомана, студено пресована технология;
Безшумна канализационнa система с трислойни тръби Master 3 Plus;
Филтрирана вода от Best Water Technology
Положена ел. инсталация с монтирани ключове и контакти;
В жилището ще бъде изградена VRF инсталация за климатици.
По желание на клиента може да се изгради система за подово отопление (с възможност за охлаждане, чрез стенни конвектори ) чрез тръбна разводка от световния лидер REHAU, която ще може да се захрани посредством индивидуални термопомпа въздух- вода.
Под на тераса -гранитогрес;
Входна врата блиндирана с 70мм крило;
Изпълнена и монтирана видео-домофонна система;
Вътрешните и външните подпрозеречни первази са предвидени от варовиков камък;
Покрив - Плосък покрив, топло, паро и хидроизолиран.
Няма нищо по-ценно от ежедневните удобства.
✔ Луксозни високоскоростни електрически асансьори във всеки вход допълва комфорта, с плавната и безшумната работа при движение с повишена енергиийна ефективност.
✔ Домофонната система предвижда отключване на входната врата от всеки апартамент.
✔ Общите части са удобни и луксозни, изпълнени от гранит / мрамор.
✔ Предвидени иновативни / смарт решения за сигурност с автоматизация при пожар и наводнения с възможност за донадграждане функциите на SmartHome.
Защото Вашият дом е Вашата крепост!
В комбинация с атрактивната локация в центъра на града, това гарантира нарастващо търсене на имоти в квартала и съответно стабилна инвестиция с постоянно нарастваща във времето стойност.







