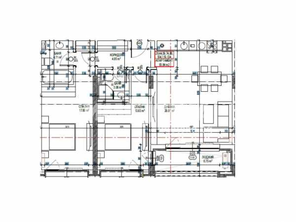
Тристаен апартамент, състоящ се от: коридор, дневна с кухненски бокс, две спални, баня с тоалетна и тераса, тип лоджия.
Намира се в непосредствена близост до метростанция 'Люлин', магазин 'Технополис' и хипермаркет 'Билла'.
Сграда от клас А. Соларни панели на покрива. Предвидено отопление на ТЕЦ. Асансьори на 'Orona'.
Отлични локация, комуникация и инфраструктура. Метростанция. Опция за подземно паркомясто.
Обади се сега и цитирай този код 590813







