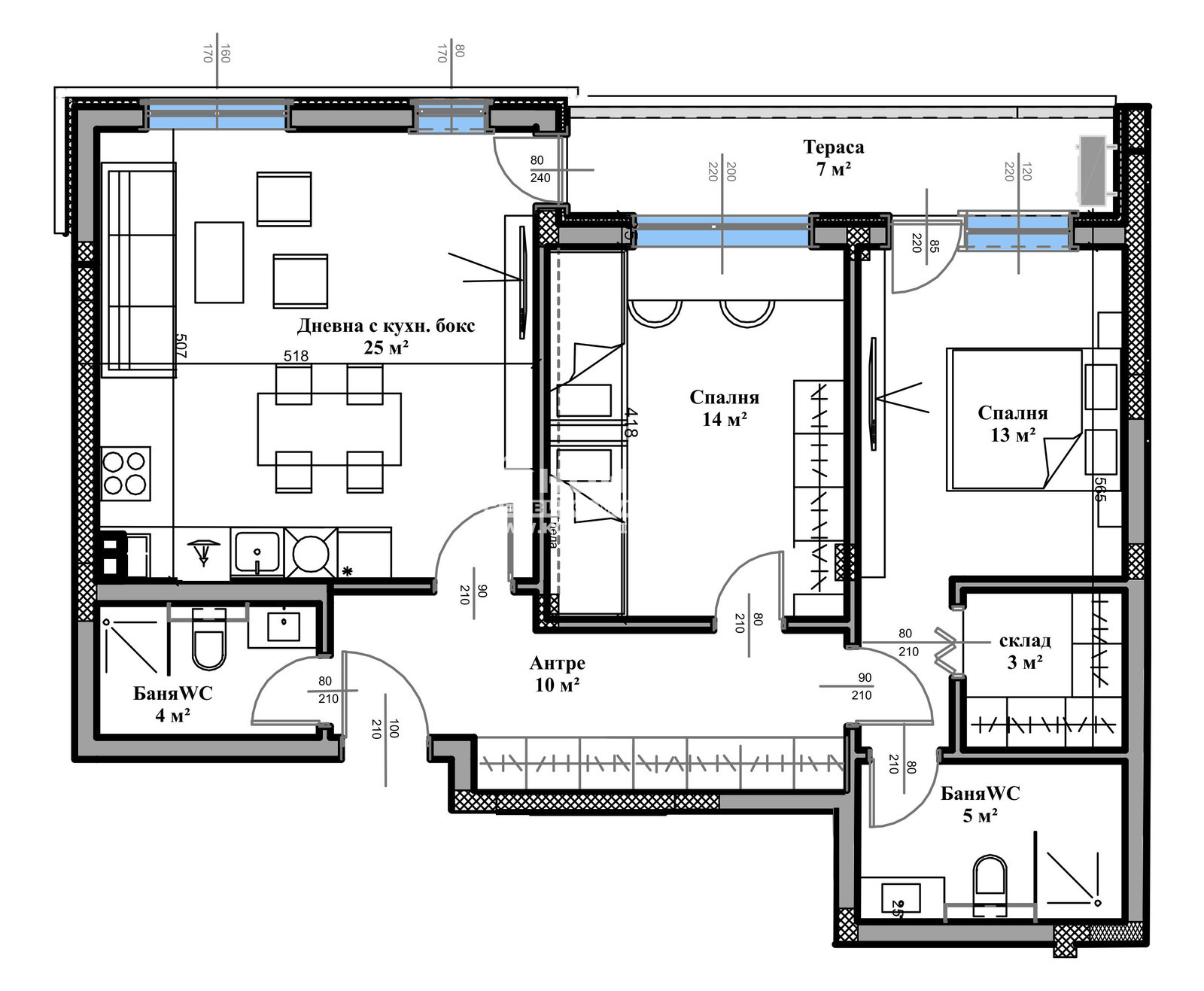
Разпределения - Предлагаме на Вашето внимание светли и функционални апартаменти. Жилището се състои от дневна 25кв.м. с трапезария и кухненски бокс с излаз на тераса, две самостоятелни спални: родителска 13кв.м. със собствена баня и дрешник, детска 14кв.м., втора баня с тоалетна и входно антре с място за обособяване на голям гардероб. Имате възможността да си закупите жилище с една, две или три спални!
Материали - Проектирана с изключително нисък процент общи части, жилищната сграда се изгражда в унисон с най-високите европейски стандарти за качество. Използваните материали са съобразени с най-новите тенденции в строителството - модерна външна облицовка, покривна и фасадна изолация, PVC пет камерна дограма, луксозни общи части и др., допринасят допълнително за усещането за лукс и комфорт на обитателите.
За удобството на своите собственици, сградата разполага подземен паркинг с Гаражи и Паркоместа, както и Паркоместа ситуирани в двора! Локация - Районът на булевард Южен, близостта на големи супермаркети, училища и детски градини, допълнително внася комфорт в ежедневието на хората.
Начин на плащане - Кондор имоти предлага възможност за банково финансиране от водещи банки на преференциални условия. Разсрочено плащане в рамките на строителството.
ВИЖТЕ ОЩЕ ИЗГОДНИ ОФЕРТИ НА https://www.kondorimoti.com/ С ЕЖЕДНЕВНА АКТУАЛИЗАЦИЯ!
Виж всички обяви в kondor.bazar.bg или тук







