Предлагаме за продажба 3-стаен апартамент в малка бутикова сграда в кв. манастирски ливади - запад
Локация: до ул. Родопски извор
на 5 минути от Околовръстен път
Малка бутикова 5-етажна сграда. Общо в сградата има само 11 апартамента.
На партерно ниво са предвидени гаражи и паркоместа.
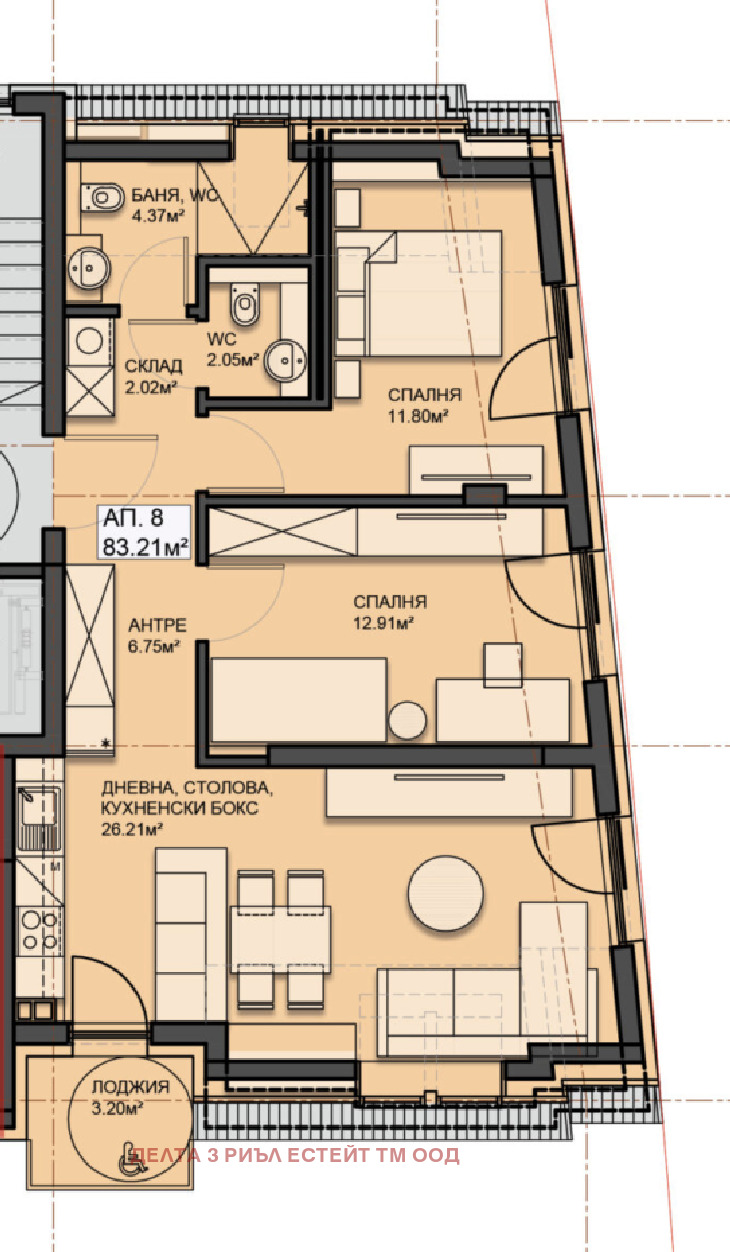
В сградата има свободен 2-стаен апартамент, няколко 3-стайни и 4-стаен апартамент на предпоследен етаж.
Етап: начален
Акт 16 - средата на 2027г.
Схема на плащане:
20% - ПД
70% - акт 14
10% - акт 16
ЗА ОГЛЕДИ И ПОВЕЧЕ ИНФОРМАЦИЯ - Белла Кузнецова, тел: + 359 879 507 463. Ако не Ви отговоря, моля, позвънете отново, или изпратете запитване по e-mail: [email protected]







