Без комисионна! В строеж. Етап - пета плоча. Атрактивни цени гр.София, с най-доброто съотношене цена-качество на пазара на недвижими имоти в столицата.
Супер луксозно строителство!!!!В близост до метростанция Овча Купел !!! Перфектна инфраструктура!
Обадете се сега на 0878 878 535 или 0894 466 863!
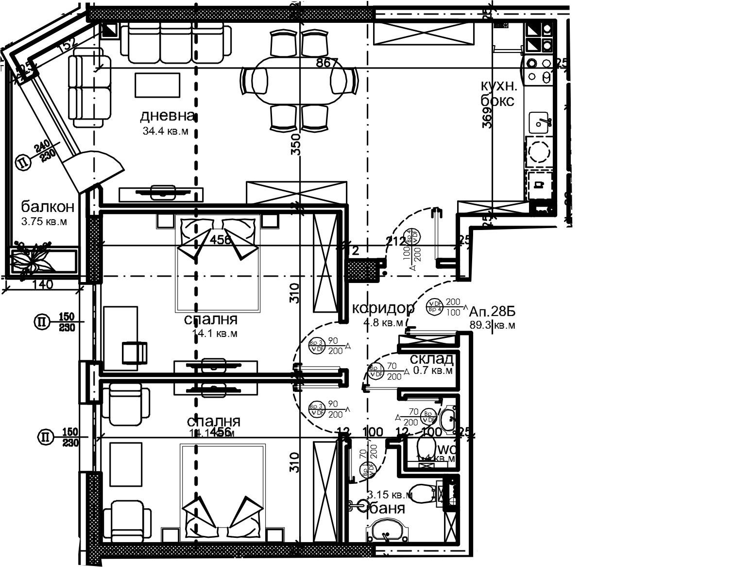
Тристаен , светъл апартамент с просторни стаи, етаж 5 от десет. REVIVE Building/ сграда'РИВАЙВ'-- адрес бул.Никола Мушанов, но всъшност на 50м. отстояние него. Сградата предлага директен бърз достъп до булеварда и в същото време локацията е спокойна, тиха. На границата на три квартала - Овча Купел, Красна поляна и Лагера. МИНИМАЛНИ ОБЩИ ЧАСТИ-РЕАЛНА,ИЗПОЛЗВАЕМА ПЛОЩ!
Ап.: 28Б
Етаж: 5
Спални бр.: 2
Обща площ в м2: 99,72
Общи части м2: 10,42
Изложение: З
Цена с ДДС: 194 454 евро
✅ Всеки кв.м - полезна площ!
✅ СВЕТЛИ (чисти) площи на помещенията, измерени без стени!
✅ 10 % общи части за сградата !
✅ Супер луксозно и качествено строителство!
✅ Обезопасена детска площадка към сградата.
✅ Детска градина към сградата!
✅ Кулинария/топла кухня/ Bar &grill към сградата.
✅ Офис на Еконт във сградата!
✅ Офис на Изпей във сградата!
✅ На границата на три квартала Овча купел, Красна Поляна и Лагера ;
✅ Перфектна инфраструктура, на бул. Никола Мушанов, сграда на 50м. от булеварда ;
✅ Срещу бъдещия нов атрактивен квартал Галакси , разположен на площ от 200 дка;
Срещу магазини на Кауфланд, Технополис, Практикер;
✅ В близост до: МЕТРОСТАНЦИЯ, държавни училища, детски градини, пазар, МБАЛ Надежда
✅ Разсрочено плащане. Осигурено преференциално кредитиране още в начален етап







