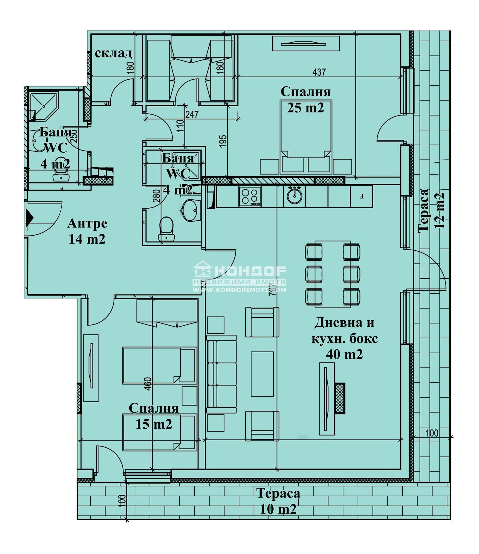
Оферта 56160: Предлагаме ви възможността да закупите просторни и светли апартаменти, намиращи се в сграда със съвременна архитектура с иновативна визия, съчетаваща модерни технологии с качествени материали на строителство, позиционирана в самото сърце на квартал Кършияка!!! Апартаментите са с отлично разпределение !!! Жилището, което ви предлагаме е с изцяло южно изложение и се състои от дневна с трапезария и кухненски бокс 40м2, две самостоятелни спални, две санитарни помещения, входно антре и голяма ъглова тераса. Сградата се строи от реномирана фирма с множество готови сгради в града, като можем да ви покажем качеството на изпълнение и материалите които се използват. Жилищата се отвършват според всички изисквания за качествено строителство, хидравличен асансьор, блиндирани входни врати, висок клас ПВЦ - дограма. Свободни Паркоместа и Гаражи на партерно ниво. Разсрочено плащане в рамките на строителството. СТРАХОТНА ИНВЕСТИЦИЯ!
ВИЖТЕ ОЩЕ ИЗГОДНИ ОФЕРТИ НА https://www.kondorimoti.com/ С ЕЖЕДНЕВНА АКТУАЛИЗАЦИЯ!







