АКТ 16! ЮГ!
Сградата е изградена със сериозно внимание към детайла и предлага богато озеленяване с поддържани зелени площи и цветни алеи, които създават спокойна и уютна атмосфера.
За сигурността на живущите е осигурен завършен контрол на достъпа, видео наблюдение с камери на общите части и входовете, както и надеждна охрана.
Имотът се намира в близост до Фантастико, Кауфланд и спирки на градски транспорт.
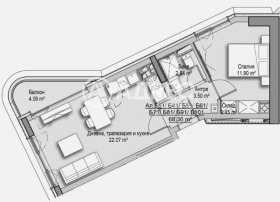
Самостоятелна, ново строителство, с ограничен достъп и добре поддържани общи части
Имотът е подходящ както за живеене, така и за инвестиция с цел отдаване под наем. Южното изложение осигурява естествена светлина през целия ден, а вътрешното разположение гарантира тишина и комфорт.
Обади се сега и цитирай този код 657329



