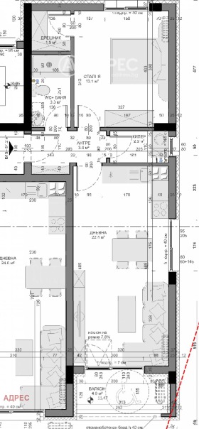
Нова пет етажна сграда в строеж, с два входа и само по четири апартамента на етаж. ГАРАНТИРАН ИНВЕСТИТОР. Асансьор и широки общи части приспособени и за инвалиди. Плоски покриви, без скосявания, изцяло покрити етажи -без отстъпи. Изключително практичен жилищен проект, като стаите са достатъчно големи и уютни и във всяко жилище има поне по два санитарни възела. В тристайните апартаменти спалните са със собствен дрешник и още три сервизни помещения. Практично, удобно и функционално! Моля разгледайте архитектурния проект към всяка обява, за по обстойна информация! Разсрочена схема на плащане!
Избор на двустайни и тристайни апартаменти, подземни и надземни паркоместа и гаражи. Сградата е в непосредствена близост до автобусна спирка, с лице към асфалтов път. Тази нова кооперация се намира само на 250м отстояние от СОУ' Пейо Яворов' и Кметство Владиславово!
Тази нова кооперация се намира само на 250м отстояние от СОУ' Пейо Яворов' и Кметство Владиславово!
Плоски покриви, без скосявания. Разсрочена схема на плащане!
Възможно кредитиране;
Обади се сега и цитирай този код 662406







