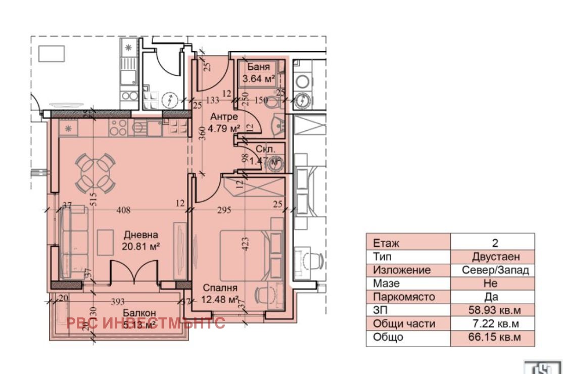
'РВС Инвестмънтс' ЕООД има удоволствието да Ви представи просторен двустаен апартамент в сграда 'Мелиа Резидънс'. Сградата се намира в кв. Обеля и е в непосредствена близост до метростанция Обеля.
Апартаментът е с 66.15 кв.м. обща площ заедно с 58.93 кв.м. чиста площ и е разположен на втори жилищен етаж, с изложение Северо запад. Имотът се предлага на етап - шпакловка и замазка по БДС.
Цената е с включено ДДС.
За повече информация може да се свържете с нас на посочените телефони.
Централен офис - +359 2 426 1244
Офис Мениджър - 0896824835



