БИЛДИНГ БОКС предлага за продажба просторен двустаен апартамент в модерен жилищен комплекс Garden Residence , разположен на бул. Ломско шосе .
Жилището е разположено на 3-ти етаж от общо 9 в нова, модерна сграда с издаден АКТ 14 - част от затворен комплекс с отлично поддържани общи части и контролиран достъп.
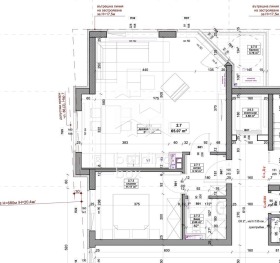
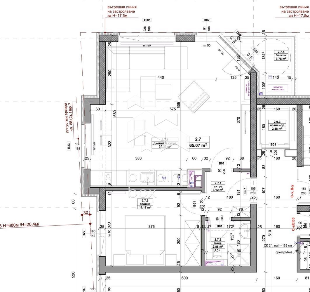
Апартаментът е с обща площ от 74.07 кв.м., от които 65.07 кв.м. чиста застроена площ, със функционално разпределение, подходящо за комфортно обитаване.
Изложението е северозапад / изток, което осигурява естествена светлина през различните части на деня.
Комплекс Garden Residence се отличава със съвременен архитектурен дизайн, висококачествено строителство и богато озеленени общи пространства.
На разположение на живущите са:
- Зелени алеи и зони за отдих;
- Детски площадки;
- Контрол на достъпа и отлично поддържани общи части.
Районът е един от най-перспективните в гр. София, съчетаващ динамичен градски ритъм и комфортна жилищна среда.
Локацията осигурява отлична инфраструктура и бърз достъп до централната част на града, като в същото време предлага спокойствие и удобство за ежедневието.
Всичко необходимо е на пешеходно разстояние метростанция на само 150 м, търговски обекти и основни пътни артерии, което прави имота изключително подходящ, както за лично ползване, така и за инвестиция с висока възвръщаемост.
БИЛДИНГ БОКС предоставя безплатна консултация и съдействие при финансиране на избрания от Вас имот.
Оферта 31614







