Translations in other languages:
All real estate ads published on imot.bg have been translated into English and published on the partner site
Получихте нова обява по филтър





Промяна на цена на наблюдавана обява


стара цена
нова цена
imot.bg – обяви за продажби и наеми на имоти
Сайт за имоти №1
Translations in other languages:
All real estate ads published on imot.bg have been translated into English and published on the partner site
ДОБАВИ ОБЯВА Редакция на обява
Начало Добави обява Търсене Агенции Новини Кредити Вход / Регистрация
Продава 2-СТАЕН
град София, Зона Б-18
211 200 €
413 071.30 лв.

(3 200 €, 6 258.66 лв./m2)
Цената е с включено ДДС
История на цената
Публикувана в 4:32 на 24 април, 2026 год.
Обявата е посетена 135 пъти.
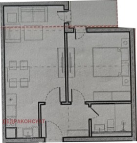
Площ:
66 m2
Етаж:
3-ти от 6
Строителство:
Тухла, Въведен в експлоатация 2024 г.

Описание на имота:


Прдставяме ви , двустаен апартамент с РЗП 66 кв.м. и ЗП 57кв.м. в сграда с акт 16 от края на 2024г, находяща се на ул. Одрин и Пиротска. Ситуиран на втори жилищен етаж с разпределение дневна с кухненски бокс, спалня, баня с тоалетна, склад, коридор и тераса. Района е комуникативен. В близост има спирки на градски транспорт, метростанция, магазини , пазар, училища и детски градини.Ключ в агенцията. Предлагаме съдействие за банково финансиране на преференциални условия и лихви от водещи банки. За контакти тел. 0885058989.
Особености
Тухла
Асансьор
Контрол на достъпа
За контакт:
0885058989
Агенция:
ДЕДРАКОНСУЛТ
0885058989
В imot.bg от 2024 г.
dedrakonsult.imot.bg
Адрес:
област София, гр. София, бул. Мария Луиза 78б
ИЗПРАТИ ЗАПИТВАНЕ
ИЗПРАТИ ЗАПИТВАНЕТО

Продава 2-СТАЕН
град София, Зона Б-18
Обява: 1b177699435316104

211 200 €
413 071.30 лв.
История на цената
(3 200 €, 6 258.66 лв./m2)

Цената е с включено ДДС
ЗАПАЗИ ОБЯВАТА

Местоположение: град София, Зона Б-18

Виж още имоти от София или още Двустайни Апартаменти в София
Допълнителни данни за имотите в района и сравнение с други райони

Покажи

Период

и 4 месеца

* Средните цени са определени чрез медианна стойност
Още обяви в imot.bg
Обяви за имоти Продажби град София Зона Б-18 Двустайни апартаменти
Въпроси и предложения към imot.bg
КОНТАКТИ | SMS КОДОВЕ | ПОМОЩ | ОБЩИ УСЛОВИЯ | РЕКЛАМА | ЗАЩИТА НА ЛИЧНИТЕ ДАННИ | КАРТА НА САЙТА |
Резон Медия | Автомобили | Работа | Новини | Обяви 2002-2026 ® Copyright imot.bg
© imot.bg ползва и препоръчва хостинг услугите на Bulinfo.net
Следвайте ни в: