ОТ АГЕНЦИЯ ЗА НЕДВИЖИМИ ИМОТИ ' ПРИОРИТЕТ' ВИ ПРЕДСТАВЯМЕ ДВУСТАЕН АПАРТАМЕНТ ЗА ПРОДАЖБА В КВ. МАЛИНОВА ДОЛИНА!!!
ДОПЪЛНИТЕЛНО ОПИСАНИЕ:
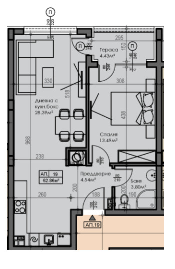
Апартаментът има следното разпределение: входно антре, всекидневна с кухненски бокс, баня с тоалетна, спалня, тераса. Жилището е със застроена площ от 62.86 кв.м. Сградата ще бъде завършена с висококачествени материални. Локацията предвижда бърз достъп до 'Симеоновско шосе' и Околовръстен път, Ring Mall, Бизнес парк София. В непосредствена близост до бъдеща метростанция. Район с развиваща се инфраструктура.
ЗА ОГЛЕДИ И ПОВЕЧЕ ИНФОРМАЦИЯ - Аспарух Кодулев, тел: 089 407 00 20.
Ако съм зает и не Ви отговоря,моля позвънете пак или изпратете запитване по e-mail:[email protected]



