Агенция SUPRIMMO: www.suprimmo.bg
Представяме комфортен двустаен апартамент за продажба в Mountain View Obelya - ексклузивен жилищен комплекс с концепция за функционалност, комфорт и достъпност, с широк избор от практични нови жилища в бързо развиващия се кв. 'Обеля 1'. Бъдещите собственици на имота ще се насладят на спокойна и добре организирана среда с отлична логистика и лесен достъп до ключови части на столицата, озеленен вътрешен двор и разнообразие от търговски обекти в самия комплекс.
Само на 35 метра от метростанция, локацията осигурява бърз и лесен достъп до центъра на София, както и до главните пътни артерии и спирки на градския транспорт. Районът предлага всички необходими удобства за комфортен живот търговски обекти, училища, детски градини, спортни комплекси и здравни заведения в непосредствена близост.
ЕКСКЛУЗИВНИ ПРОДАЖБИ. БЕЗ КОМИСИОНА ОТ КУПУВАЧА!
Разрешение за строеж - в средата на лятото 2026 г.
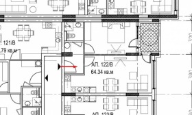
Имотът е разположен на 5-и етаж и е с обща площ 74.34 кв.м, чиста площ - 64,34 кв.м, върху които са разпределени: антре, баня с тоалетна, дневна с кухня, една спалня, тераса с излаз от двете стаи. Жилището се издава в степен на завършеност по БДС, с петкамерна PVC дограма Rehau, с троен стъклопакет и блиндирана входна врата.
Има възможност за закупуването на гаражи на цени от 40 000 евро (78 233.20 лв.), както и външни паркоместа на цени от 18 000 евро (35 205 лв.)
Новият комплекс е с финансово предимство без индексация на цените след подписване на договор, както и с възможност за избор между две схеми на плащане.
Депозит:
Депозит за двустаен апартамент - 5 000 евро (9 779 лв.);
Депозит за тристаен или четиристаен имот - 10 000 евро (19 558.30 лв.).
Схема 1:
При подписване на договор: 40%;
При кота 0: 20%;
20% на Акт 14;
10% на Акт 15;
10% на Акт 16.
Схема 2:
При подписване на договор: 20%;
При кота 0: 10%;
50% - чл.181;
10% на Акт 15;
10% на Акт 16.
Концепция
Проектът ще се отличава с ...
За повече информация свържете се с нас и цитирайте референтния номер на имота. Моля, кажете, че сте видeли обявата в този сайт.
Референтен номер: SOF-139666
Тел: 0886 056 776, 02 404 89 80
Отговорен брокер:Сара Ароу







