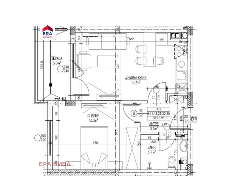
ЕРА Вива продава двустаен апартамент с АКТ 14 в близост до метростанция, 'ген.Владимир Вазов', кв.Левски Г, гр.София. Предлаганото жилище е с площ 59.63 кв.м. /50.72 кв.м. застрoена площ/. Разположено е на шести етаж от общо девет и се състои от входно антре /3.50 кв.м./, дневна с трапезария /17.40 кв.м./, спалня /13.30 кв.м./, баня с тоалетна /3.70 кв.м./ и тераса /5.00 кв.м./. Изложението е западно. Жилището се издава завършено по БДС - на шпакловка и замазка, с поставена входна врата. За повече информация вж. раздел 'План'. Сградата ще бъде построена с висококачествени материали, за да се създаде висок стандарт, уют и спокойствие на живущите. Фасадата ще бъде изпълнена с 10 см. топлоизолация, дограмата ще бъде от 5-камерен немски РVС профили, с троен стъклопакет с нискоемисионно стъкло. Входна врата на апартамента блиндирана със секретна брава Солид 55 . За максимален комфорт на живущите ще има асансьор и контролиран достъп. Има възможност за закупуване на открито паркомясто, подземно паркомясто, партерен или подземен гараж.
Отлична локация!
Сградата се намира на 5 минути пешеходно разстояние от новоизграждащата се метростанция ген.Владимир Вазов , която ще бъде пусната в експлоатация през август 2026 година.
В непосредствена близост са също 199 Основно Училище 'Св. Апостол Йоан Богослов' и 130 СУ Стефан Караджа , общински детски градини, ДГ 92 Мечта и ОДЗ 91 Слънчев кът'. Районът е с добре изградена инфраструктура, в близост се намират супермаркети (Фантастико, Била и тн.), банки, аптеки, детски площадки и спортни съоръжения.



