! ПРЕМИУМ ЛОКАЦИЯ ! ОТЛИЧНО КАЧЕСТВО ! 100М ПЛАЖА ! 50М ОТ СПИРКА !
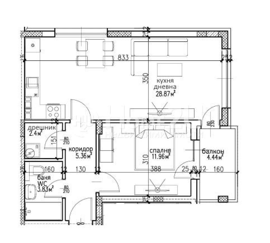
Представяме Ви двустаен апартамент в новострояща се бутикова жилищна сграда с отлично качество и иновативни решения на изпълнение, на отлична локация - САМО на 100м от златистия пясък на плаж Кабакум! Апартаментът се намира на среден етаж, с правилни форми и отлични размери на стаите. Разпределението е както следва: Входно антре, дрешник, баня и тоалетна, спалня, всекидневна с кухненски бокс и тераса. За повече яснота и улеснение прилагаме схема на разпределение. Обадете се СЕГА и цитирайте код: 256284



