LUXIMMO FINEST ESTATES: www.luximmo.bg
В процес на строителство.
Очакван Акт 16 - октомври 2027 г.
Представяме за продажба двустаен апартамент, качествено ново строителство, в спокоен и зелен район, на 550 метра от плажа в Поморие. В най-предпочитаните райони на града, на 400 метра от центъра, в близост до магазини, училища, детска градина, заведения, автобусна спирка и други удобства за живеене.
Покупка без комисиона.
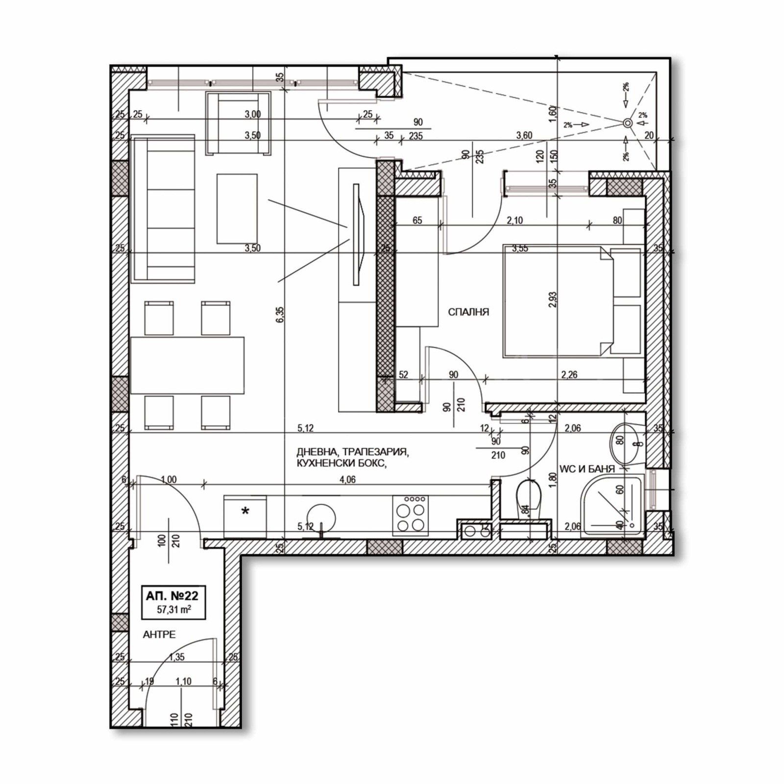
Имотът е с обща площ от 66,06 кв.м, разположен на 4-ти етаж и се състои от: антре, дневна с кухня, спалня, баня с тоалет и тераса.
Към жилището има прилежащо складово помещение с площ от 2,06 кв.м.
Издава се в степен на завършеност до ключ , като има възможност, както за дизайн и мебелиране, луксозни довършителни работи, изграждане на Smart Home , така и инсталиране на зарядни станции за електромобили.
За сградата:
уникална фасадна линия и иновативна архитектура;
модерна визия със смарт разпределения;
жилища с площ от 58,62 кв.м до 122,09 кв.м.
складови помещения, закрити гаражи и външни паркоместа;
шумоизолация и естествена светлина във всеки апартамент.
Характеристики:
асансьори до наземния паркинг с автоматични врати;
стоманобетонна носеща конструкция;
25 см зид с керамични тухли Wieneberger porotherm N+F light;
топлоизолационен слой от 12см EPS на фасадата;
декоративна мазилка в два топли цвята;
висока енергоефективност на апартаментите;
петкамерни PVC прозорци с троен стъклопакет и нискоемисионно стъкло;
плосък покрив;
паро, хидро и топлоизолация;
контролиран достъп и видеонаблюдение;
модерни системи за сигурност;
дизайнерски входни врати;
гаражни врати Hormann с електрически брави.
Луксозни общи части и много удобства предоставят на собствениците преживяване на висок стандарт.
Очакваме Вашето запитване
Ако желаете да организирате оглед на имот, който Ви интересува, или да посетите някой от нашите офиси, моля свържете се с нас. ...
За повече информация свържете се с нас и цитирайте референтния номер на имота. Моля, кажете, че сте видeли обявата в този сайт.
Референтен номер: LXH-139598
Тел: 0882 342 293, 056 706 321
Отговорен брокер:Станислав Андреев
Без комисиона от купувача







