БИЛДИНГ БОКС предлага за продажба двустаен апартамент в напреднал етап на строителство в гр. Хисаря.
Предимства на имота:
- ЛОКАЦИЯ: Комплексът е разположен в гр. Хисаря, в близост до градския стадион.
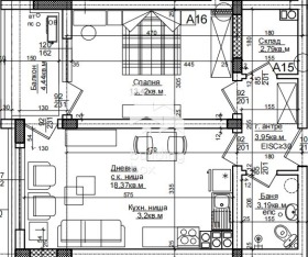
- РАЗПРЕДЕЛЕНИЕ: Просторна всекидневна с кухненски бокс, спалня, антре, баня с тоалетна, склад и тераса.
- ПЛОЩ: Апартаментът е с обща площ от 64,70 кв.м.
- ОТОПЛЕНИЕ: Електричество.
- ИЗЛОЖЕНИЕ: СЕВЕР.
- ЕТАЖ: 4-ти етаж от общо 5.
- ПАРКИРАНЕ: Наличен надземен паркинг с възможност за закупуване на паркомясто.
- СГРАДА: Модерна сграда, проектирана от инвеститор с опит и история.
- ЕТАП НА СТРОИТЕЛСТВО: Сградата е с АКТ 14. Очаква се въвеждане в експлоатация през 2026г.
БИЛДИНГ БОКС предоставя безплатна консултация и съдействие при финансиране на избрания от Вас имот.
Оферта 23985







