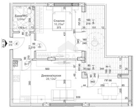
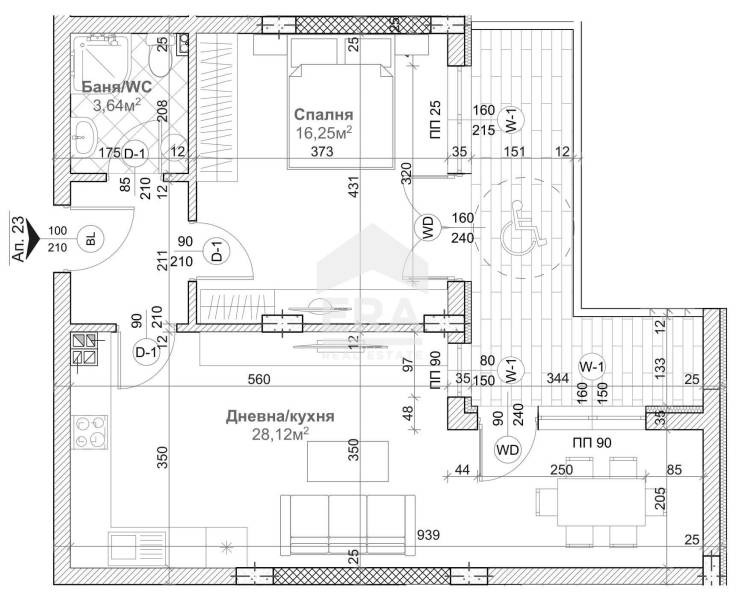
ЕРА Лайф обявява за продажба апартамент със застроена площ 79 кв.м. (обща площ 95 кв.м.), разположен на пети етаж от седем в новострояща се сграда. Имотът е със следното разпределение: антре, дневен тракт с кухненски бокс - 28,12 кв.м., спалня - 16,25 кв.м. с излаз на обща тераса от двете стаи и комбиниран санитарен възел - 3,64 кв.м., ведно с прилежащо избено помещение с площ 7,48 кв.м. Виж раздел 'План' . Към имота има и паркомясто. Жилището е със статут на апартамент.
Апартаментът се завършва по БДС стандарт - на шпакловка и замазка. Продава се без обзавеждане. Отоплението е на ток. Очакван срок на завършване януари 2027г.
Предлаганото жилище е част от луксозен жилищен комплекс в непосредствена близост до Университетска болница 'Света Марина'. Сградата е с иновативен, функционален и елегантен дизайн. Разположена в район с добър асфалтов достъп, тя предлага бърз и лесен достъп до основните градски артерии. При планирането на комплекса основно внимание е обърнато на удобството и безопасността на бъдещите жители. За сградата ще се използва стоманобетонова, гредова конструкция, укрепена с носещи колони, греди, шайби и здрави стоманобетонови плочи. Всеки елемент от проекта е избран с грижа за устойчивостта и дълготрайността на сградата, следвайки строгите национални стандарти. Код: 0708100
Оферта 0708100



