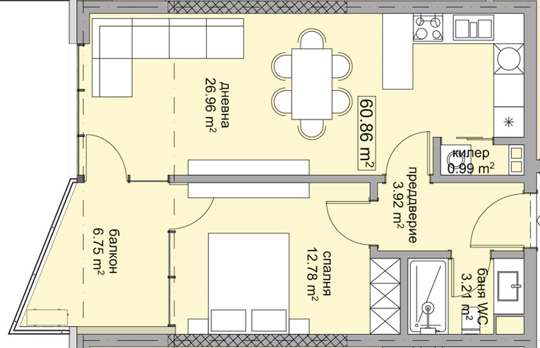
Имотен център Варна предлага за продажба двустаен апартамент в модерна новострояща се сграда в м-т Горна Трака, гр. Варна. Имотът е в начален етап на строителство, с издадено разрешение за строеж и очаквано въвеждане в експлоатация през 2028 г. Жилището е разположено на среден етаж и се отличава с функционално разпределение: входно антре, просторна всекидневна с кухненски бокс, килер, спалня, баня с тоалетна и тераса. Апартаментът ще бъде издаден по БДС, което дава възможност за довършване според индивидуалния вкус на бъдещия собственик.
Сградата ще бъде изпълнена с висок клас материали, с модерна визия, отлични общи части и висока енергийна ефективност. Предвиждат се контролиран достъп и възможност за избор между открити и закрити паркоместа. Проектът предлага богат избор от двустайни и тристайни апартаменти, което го прави подходящ както за лично ползване, така и за инвестиция.
Локацията съчетава спокойствие, зеленина и чист въздух, с лесен достъп до основни пътни артерии и града.
За повече информация и детайли относно конкретния апартамент и проекта, моля свържете се със Самуил Батанов - 0877 927 942.







