ДИРЕКТНО ОТ ИНВЕСТИТОРА БЕЗ КОМИСИОННА!!! На добро място в квартала. Разсрочено плащане в рамките на строителството - 5 вноски в различните етапи на строежа! Инвеститор с дългогодишна (над 25 години) безупречна репутация в града с множество завършени в срок и въведени в експлоатация обекти, които могат да Ви бъдат показани! Фиксирана цена без промяна до завършването на сградата!
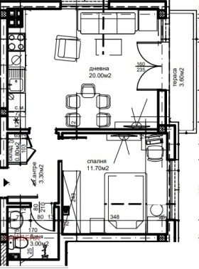
Предлагаме Ви да закупите просторен и светъл двустаен апартамент в новострояща се малка четири етажна сграда. Апартамента се състои от светла всекидневна с кухненски бокс,спалня , тераса, баня с тоалетна и коридор със склад. Много добри отзиви за помещенията, пространството и функциалността на жилището на клиенти от предишни завършени жилища с подобна квадратура и разпределение на инвеститора. За изграждането на комплекса се използват само висококачествени материали, отговарящи на изискванията и предпочитанията за модерно жилищно строителство. Сградата осигурява на своите собственици комфортна среда за живот чрез жилища, проектирани с максимално използване на вътрешните пространства, много светлина, изключително ниски разходи за енергия и малък процент общи части. Възможност за закупуване на паркомясто.
Оферта която заслужава Вашето внимание - изключително добро съчетание от атрактивна цена, добра локация в квартала и качествено изпълнение от доказан инвеститор. Избор и на други тристайни апартаменти с различни квадратури и цени.
Скиците на апартаментите отговарят на реалните измерения на вътрешните пространства. Снимките от построения апартамент са пример от подобно жилище в друг завършен проект на инвеститора. Приложените 3D изображения са примерни, но може да бъде изработен и реализиран подобен проект от екип на професионален дизайнер и изпълнители, с който агенцията работи в тясно сътрудничество от дълги години. Множество реални завършени обекти до момента в гр. Пловдив и региона.



