Агенция Orion Property Management предлага за продажба елегантен двустаен апартамент в новострояща се модерна сграда, разположена на бул. Симеоновско шосе 12, гр. София предпочитана локация с удобен достъп до центъра на града и основни пътни връзки.
Имотът е ситуиран на 11-ти етаж, вход Б, и се отличава с изложение север / запад, което осигурява приятна прохлада през летните месеци и комфортна жилищна среда.
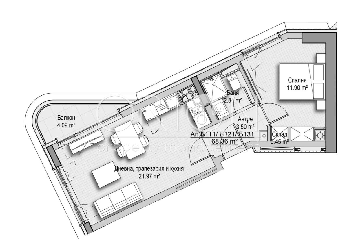
Жилището е с обща площ от 68 кв.м. и функционално разпределение:
просторен хол с кухня и трапезария
самостоятелна спалня
баня с тоалетна
входно антре
складово помещение
балкон
Сградата е съвременен проект, изпълнен с висок клас материали и модерна архитектура, разположен в един от най-бързо развиващите се райони на столицата. Локацията предлага отлична комуникативност и висок инвестиционен потенциал.
Етапи на строителство:
Акт 14 октомври 2026 г.
Акт 15 декември 2027 г.
Акт 16 март 2028 г.
Има възможност за закупуване на:
паркоместа на цени, започващи от 35 000 евро
Имотът съчетава комфорт, функционалност и отлична локация подходящ както за живеене, така и за инвестиция.
За повече информация, моля обадете се на посочения телефон и цитирайте реф. номер: 45153.
💰 Цена: 219 000 евро







