Имотен център Варна представя двустаен апартамент в Цветен квартал
Строителство: Тухла пред акт 15
Етаж: 2 от 11
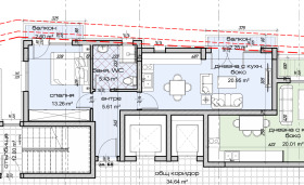
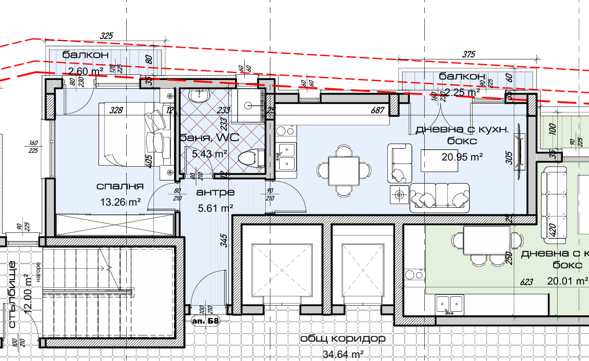
Площ: 70кв.м.
Разпределение:
Входно антре
Всекидневна с кухненска част
Спалня
Баня и тоалетна
Две терасию
Намира се до 'Бенита' и бул. 'Христо Смирненски'.
При интерес за оглед: 0877 935 798 - Росен Димитров







