ИМОТ No: 655
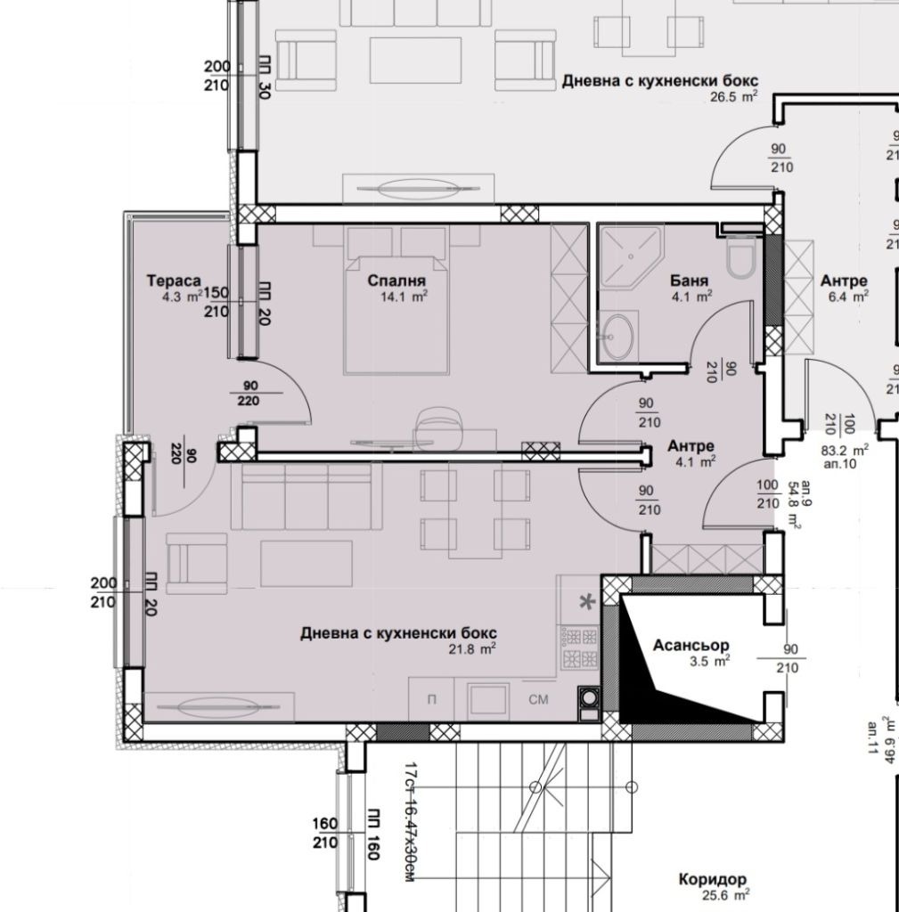
Продава 2-СТАЕН апартамент, ново тухлено строителство - в процес на строеж, в град Кърджали, квартал Възрожденци, в района на Пасарелката. Жилището е с обща площ 62.73 кв.м. и се състои от антре, баня с тоалетна, всекидневна с кухненски кът, спалня и тераса. Имота е разположен на 2-ри жилищен етаж.
Цена: 59 600 евро.



