ДО ПАРКМАРТ/ ЗАВЪРШЕНА СГРАДА/ИНВЕСТИЦИОНЕН ДВУСТАЕН СТАТУТ АПАРТАМЕНТ/ ТОП ЛОКАЦИЯ/ БЪРЗ ДОСТЪП ДО ЦЕНТЪРА
Николай Николов- 0879 560 900
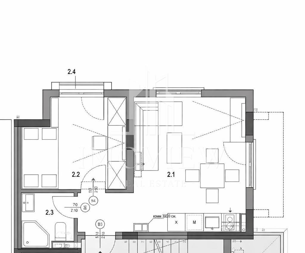
Имотът представлява: Входно антре, дневна с кухненски бокс,балкон, спалня и готова баня с тоалет.
Състояние: Жилището се издава по 'БДС', като банята е готова. Допълнително предлагаме преференциални цени за обзавеждане.
Локация: Сградата се намира до Паркмарт, непосреднествено близо до всичко необходимо за едно домакинство. Бърз достъп до центъра и на минути от плажа.
*Като клиенти на агенция 'ImoView' може да се възползвате от селекция избрани услуги:
*Преференциални условия на банково финансиране
*Изготвяне на индивидуален проект и цялостно завършване и обзавеждане
*Достъп до инвестиционен портал с ексклузивни имоти на отлични цени



