Обади се и цитирай този КОД: 690124
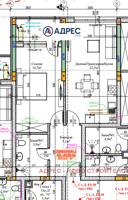
Предлагаме Ви, БЕЗ КОМИСИОНА, двустаен апартамент, разположен на осми етаж в новострояща се осеметажна тухлена сграда, находяща се на бул. Цар Освободител и бул. Христо Ботев, с възможност за закупуване на ГАРАЖ. Имотът се състои от спалня, дневна/трапезария/кухня, баня с тоалетна, лоджия, коридор и склад на етажа, с обща площ 78,02 кв.м. Жилището ще е просторно, с функционално разпределение и правилни форми, които позволяват елегантно интериорно оформление и максимално използване на площта. Проектът се осъществява от една от водещите строителни фирми в града, известна с качеството си на изпълнение. Сградата ще е с модерна архитектура, уютен двор, висок клас материали, луксозни общи части, PVC дограма, топлоизолационни системи, асансьор и с отлично качество на изпълнение. С възможност за РАЗСРОЧЕНО ПЛАЩАНЕ.
Агенция за недвижими имоти Адрес Русе е партньор на Кредит Център, регистриран кредитен посредник в БНБ с рег. номер 65-ЗБ/22.08.2007г. Чрез Кредит Център можете да получите БЕЗПЛАТНА консултация за ипотечни и потребителски кредити, рефинансиране. Като клиенти на Кредит Център ще получите ПРЕФЕРЕНЦИАЛНИ условия от водещите банки у нас. Кредит Център ще Ви помогне да изберете най-подходящата за Вас банка, която ще Ви отпусне кредит- изгодно, бързо и лесно. Кредит Център ще Ви съдейства през целия процес до усвояване на кредита.



