Продава се стилен 2-стаен апартамент в ж.к. Обеля 2, гр. София
Представяме Ви чудесна възможност за покупка на ново жилище в един от бързо развиващите се райони на столицата Обеля 2.
Имотът е отличен избор както за лично ползване, така и за инвестиция с добра доходност.
Със своята функционална площ, модерно строителство и удобна локация, този апартамент предлага комфорт и практичност в едно.
Тип имот: 2-стаен апартамент
📍 Локация: гр. София, ж.к. Обеля
💶 Цена: само 20% стартова вноска
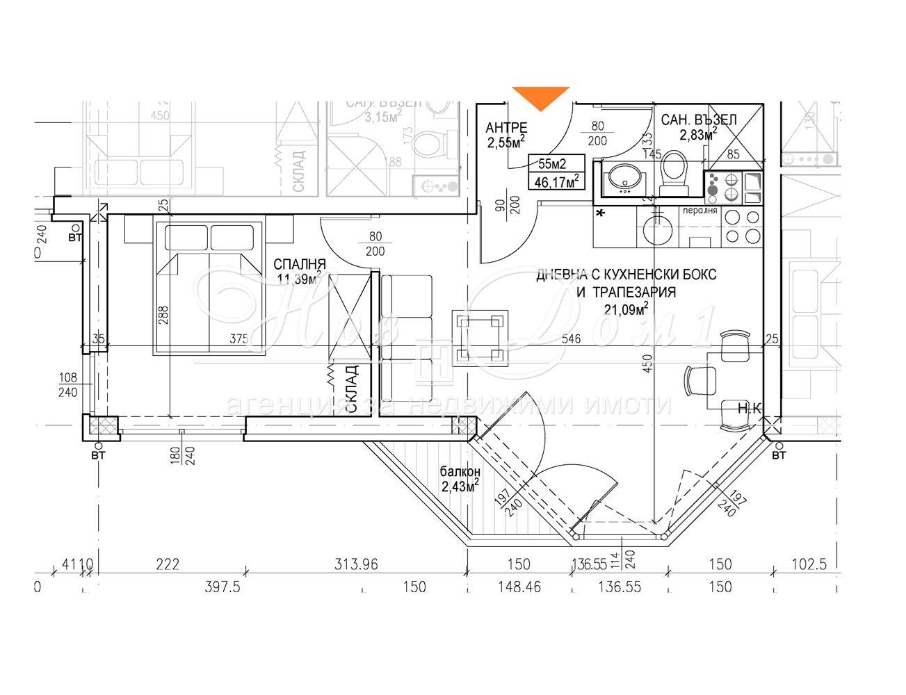
📐Обща площ:65 кв.м
🛋 Брой стаи: 2
🛏 Брой спални: 1
🌅 Брой балкони: 1
🚿 Брой бани с тоалетна: 1
🔹 Предимства на имота:
✅ Функционално разпределение, подходящо за млади семейства, двойки или самостоятелно живеене
✅ Светла дневна зона с отличен потенциал за уютен интериор
✅ Комфортна спалня, осигуряваща спокойствие и удобство
✅ Балкон, идеален за сутрешно кафе ☕ или отдих след дълъг ден
✅ Ново строителство с модерна визия и съвременни стандарти
✅ Подходящ както за живеене, така и за отдаване под наем 📈
В ЦЕНАТА ще получите ОЩЕ:
ВХОДНА БЛИНДИРАНА ВРАТА с ПЪЛНЕЖ МИНЕРАЛНА ВАТА, италиански обков, италианска патронова брава с патрон на SOLID 10
ДОМОФОНА ИНСТАЛАЦИЯ И ВИДЕОКОНТРОЛ НА ДОСТЪПА,
ФАСАДНА СИСТЕМА ЗА ВИДЕОНАБЛЮДЕНИЕ,
ВИДЕО-ДОМОФОНЕН ПАНЕЛ И ПРИЕМНИК.
ВОДОМЕРИ С ДИСТАНЦИОННО ОТЧИТАНЕ,
ЕЛ. ТАБЛО, ПРЕДПАИТЕЛИМ КЛЮЧОВЕ И КОНТАКТИ,
РАДИАТОРИ ВЪВ ВСЯКА СТАЯ с ТЕРМОСТАТИЧНИ ГЛАВИ на всеки радиатор
ПОЛОЖЕНИ ИЗВОДИ ЗА КЛИМАТИЦИ
🚇 Районът се развива активно и е предпочитан заради добрата инфраструктура, близостта до градски транспорт, трамваи, метро и бързата връзка с централните части на София.
✅ ГЪВКАВОСТ ПРИ ПЛАЩАНЕ И ПАРТНЬОРСТВО ОТ ВОДЕЩИ БАНКИ
Консултант-БРОКЕР: Роси Иванова
0897 000 282
НОВ ДОМ 1 е компания, която разполага с : Юридически Отдел извършващ всички необходими юридически и технически проверки на имота, организира всички етапи на сделката до нейното финализиране с нотариално прехвърляне на имота. Кредитен Отдел съдействащ за отпускане на банков кредит при възможно най-добри условия за клиента, като избора на банка се определя спрямо нуждите и възможностите на клиента. Строително-Ремонтен Отдел гарантиращ при нужда цялостен ремонт на вашето жилище до ключ при най-изгодни условия и цени.
За повече информация
Консултант: Роси Иванова
0897 000 282







