Агенция за недвижими имоти 'Перфе' има удоволствието да ви представи:
ЕТАП: АКТ 15! АКТ 16 - ДО М.07.2026 ГОДИНА!
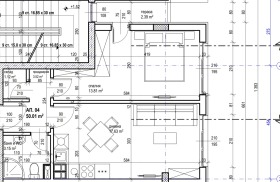
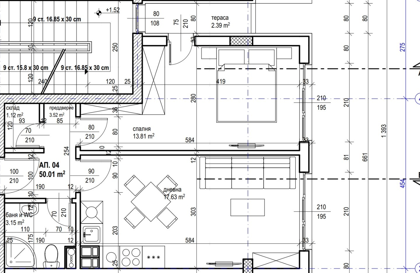
Двустаен апартамент на първи надпартерен етаж от седеметажна жилищна сграда в ж.к.'Зона Б-19' на ул. 'Царибродска' на цена от 198 000 ЕВРО!
Сградата се намира в непосредствена близост до магазини, спирки на градски транспорт, метростанция 'Константин Величков', магазини,аптеки, ресторанти, с бърз достъп до центъра.
Апартаментът е с площ от 58м2 и се състои от дневна с трапезария и кухня, спалня, баня с тоалетна и обширна тераса с площ от 12м2.
Сградата е с модерна визия и луксозни общи части, изградена е с висок клас строителни материали.
Отоплението е на газ и електричество.
За повече информация и записване на час за оглед, моля, обадете се на тел.0896 505 656.
Референтен номер на имота: 48626



