СТРОИТЕЛНА ФИРМА ТОЧЕВ И КО представяме новия си проект в гр. Бургас, ж.к. Меден Рудник, бившия БИТАК, на централен булевард. А. Г. Коджакафалията и ул. Въстаническа, на кръстовището.
В близост се намират - терминал на градския транспорт, хипермаркет, училище и детска градина. Много добър и комуникативен район с лесен достъп..
Проектът представлява девет етажна сграда с два входа, състояща се от партерни магазини и гаражи, двустайни и тристайни апартаменти, като имотите ще се издават на тапа по БДС. Срок за изпълнение-36 месеца от строително ниво и линия.
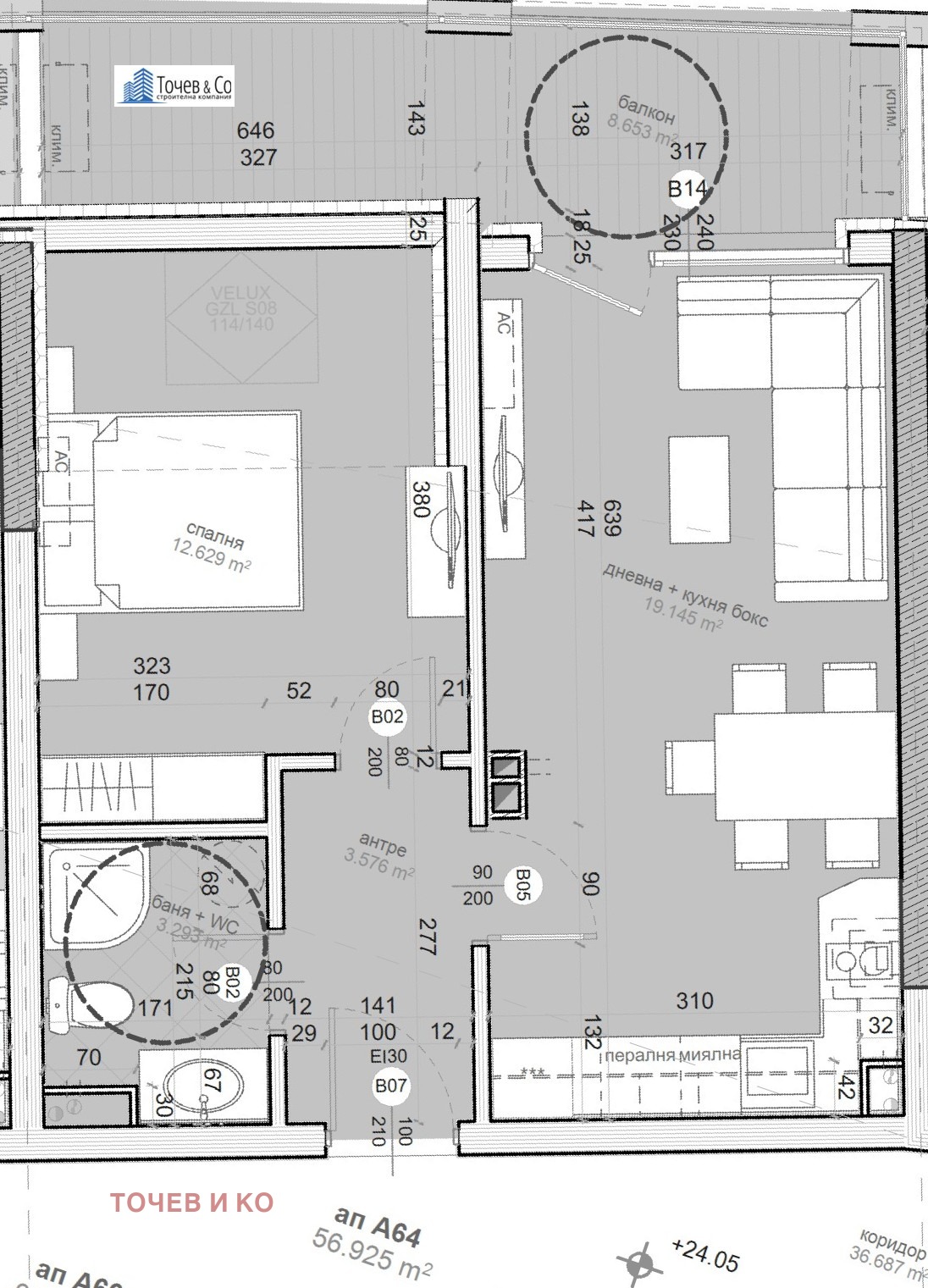
АПАРТАМЕНТ А-64.
Стандартна схема на плащане:
1. На предварителен договор -10% от стойността на имота
2. на строително ниво и линия/първа копка/-30% от стойността на имота
3. на долна плоча на етажа, на който е имота-30% от стойността на имота
4. на Акт 14-20% от стойността на имота
5. на Акт 15-5% от стойността на имота
6. на Акт 16-5% от стойността на имота
Цените са без КОМИСИОННА!
Разсрочено плащане!
БЕЗ ТАКСА ПОДДРЪЖКА.
Възможност за довършване до ключ!
ВЪЗМОЖНОСТ ЗА ПОКУПКА НА ПАРКОМЯСТО ИЛИ ГАРАЖ!!



