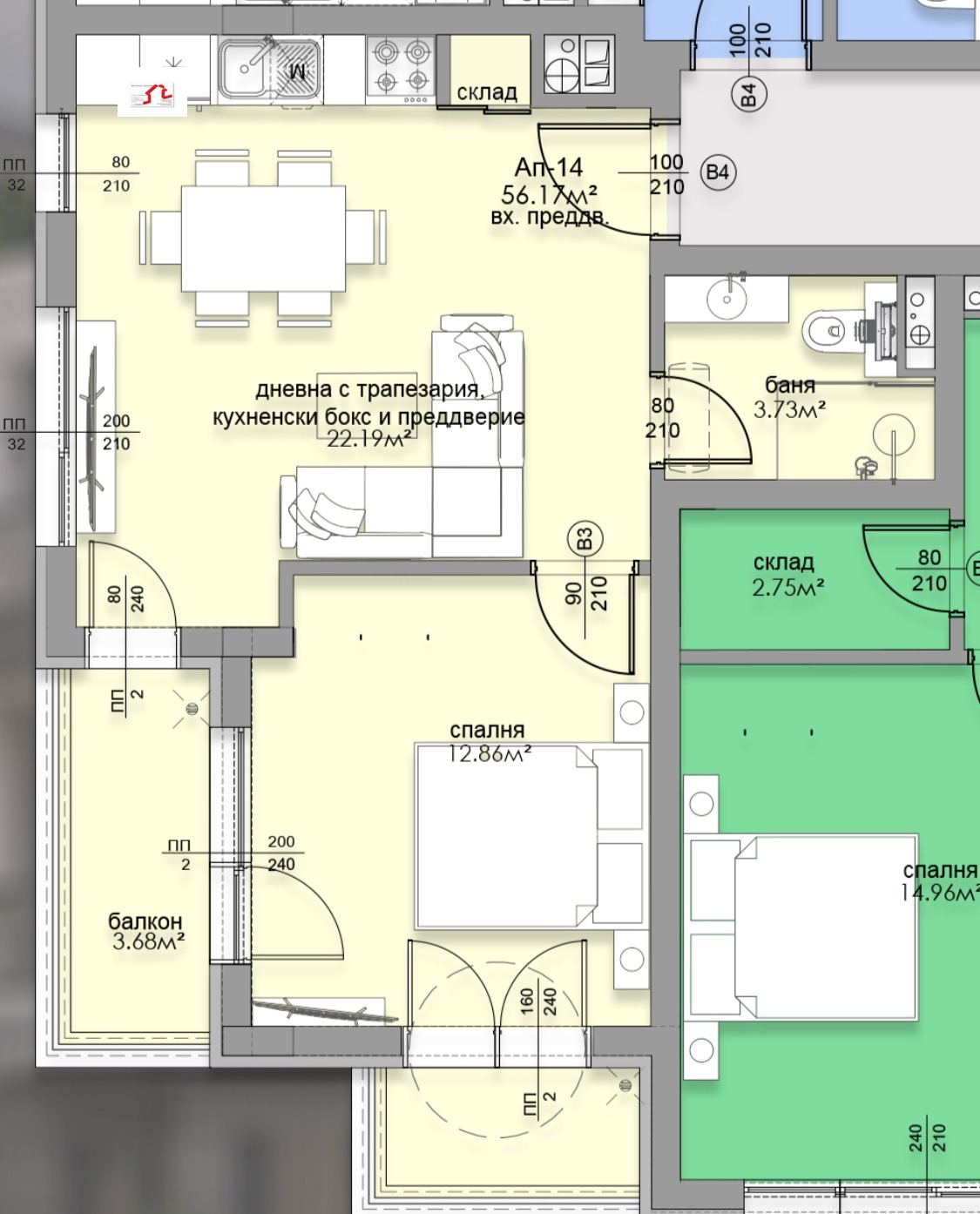
ПРЕД АКТ 15 -ДО КРАЯ НА МАЙ.АКТ 16 ДО ЛЯТОТО.ГЛЕДКА КЪМ ВИТОША.
ПРЕКРАСНО ИНВЕСТИЦИОННО ЖИЛИЩЕ ,ПОДХОДЯЩО ЗА ОТДАВАНЕ ПОД НАЕМ, А СЪЩО ТАКА ЗА ПЪРВИ ДОМ НА МЛАДА ДВОЙКА.КАЧЕСТВЕНО СТРОИТЕЛСТВО ОТ ДОКАЗАН ИНВЕСТИТОР С МНОГО ВЪВЕДЕНИ В ЕКСПЛОАТАЦИЯ СГРАДИ.ОСИГУРЕНО БАНКОВО КРЕДИТИРАНЕ ЗА ИМОТА.МАЛКА БУТИКОВА СГРАДА,В НАЙ ХУБАВАТА ЧАСТ НА МАЛИНОВА ДОЛИНА ,ДО АВТОБУСНА СПИРКА ,ДО НОВАТА ДЕТСКА ГРАДИНА.
ТЕЛ.ЗА ОГЛЕДИ 0876989885, 0876068879



