ESTEEM PROPERTIES представя стилен двустаен апартамент в новострояща се престижна сграда в центъра на град Русе.
ПАРАМЕТРИ НА ИМОТА
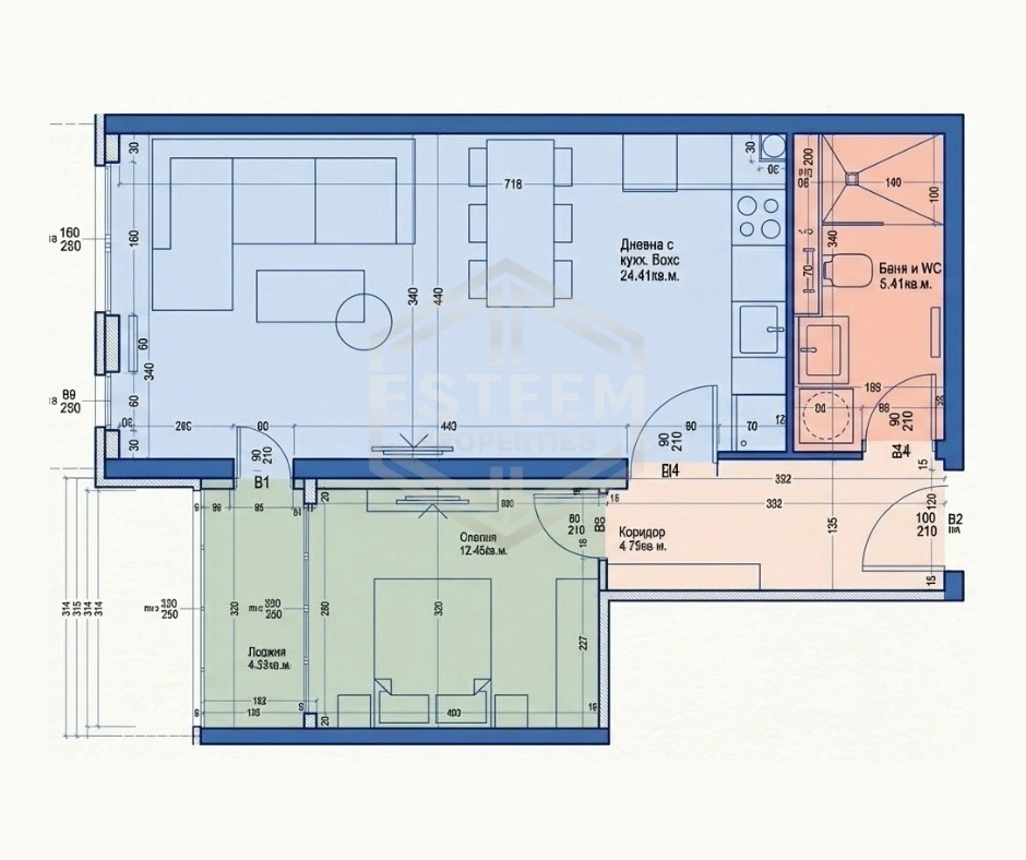
➤ Обща площ: 77.93 кв.м. (Застроена площ: 58.18 кв.м.)
➤ Етаж: 2
➤ Разпределение: Коридор, слънчева дневна с кухненски бокс, уютна спалня, баня с тоалетна и лоджия.
ТЕХНИЧЕСКИ ХАРАКТЕРИСТИКИ И КАЧЕСТВО
➤ Степен на завършеност: Жилището ще бъде завършено до ключ с материали от най-висок луксозен клас.
➤ Инсталации: Напълно изградени съвременни системи, осигуряващи комфорт и енергийна ефективност.
➤ Интериор: Правилни форми на помещенията, позволяващи лесно и функционално обзавеждане според индивидуалните нужди на новите собственици.
ЗАЩО ДА ИЗБЕРЕТЕ ТОЗИ ИМОТ?
➤ Отлична локация в централната част на града.
➤ Компактност и уют: Имотът е идеално оптимизиран, като предлага комфортна жилищна площ с практична лоджия към нея, подходяща за моменти на отдих.
➤ Осигурено складово пространство: Към апартамента принадлежи изба, което е значително предимство за организиране на допълнителното съхранение извън жилищната част.
БЕЗПЛАТНО СЪДЕЙСТВИЕ ПРИ БАНКОВО ФИНАНСИРАНЕ - Експертна подкрепа при избора на възможности за финансиране и пълно съдействие до финализиране на сделката.
За повече информация и организиране на оглед на този премиум имот, моля свържете се с нас на тел. 0894997800.
Очакваме Ви!







