Представяме Ви двустаен апартамент в нова, модерна сграда с престижна локация в близост до НСА перфектен баланс между комфорт, стил и инвестиционна стойност.
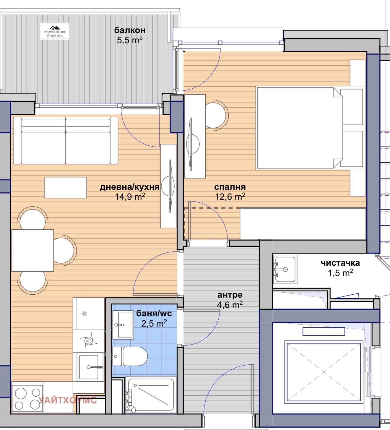
Жилището е разположено на трети етаж, с западно изложение и обща площ от 59,98кв.м., което осигурява изобилие от естествена светлина и уютна атмосфера през целия ден. Апартаментът разполага с функционално разпределение просторна дневна с кухненска зона, светла и комфортна спалня, елегантна баня с тоалетна и тераса, подходяща за отдих.
Сградата се изпълнява с висок клас материали, модерна архитектура и внимание към детайла, гарантиращи качество и дългосрочна стойност. Очакван Акт 16 до лятото.
Локацията е изключително атрактивна тиха и зелена среда в близост до НСА, с удобен достъп до градски транспорт, основни пътни артерии, магазини, заведения и спортни съоръжения.
Имотът е отличен избор както за собствен дом, така и за инвестиция с висок потенциал за доходност.
За повече информация и огледи, свържете се с нас.







