Номер на оферта: 620829
Агенция за недвижими имоти 'SEVEN HILLS' представя двустаен апартамент на метри от Медицинския университет, в новострояща се жилищна сграда в центъра на град Пловдив, ситуирана на тиха улица, без трафик и само с жилищни сгради в съседство. Мол 'Марково тепе' се намира само на 400 метра, а в близост се намират и три от най-хубавите паркове в града - Цар Симеоновата градина, Младежкият хълм и Бунарджика. Площад Централен и ул. Княз Борис I също са на пешеходно разстояние.
Разпределенията са внимателно обмислени, за да се постигне максимална функционалност и добро разположение, без излишна неизползваема квадратура. Изложенията, френските прозорци и правилната форма на апартаментите ги правят комфортни за обитаване, с просторни всекидневни и спални с високи тавани и много светлина.
Строителството се изпълнява по всички европейски изисквания за качество, с модерна окачена фасада и висок клас мазилка.
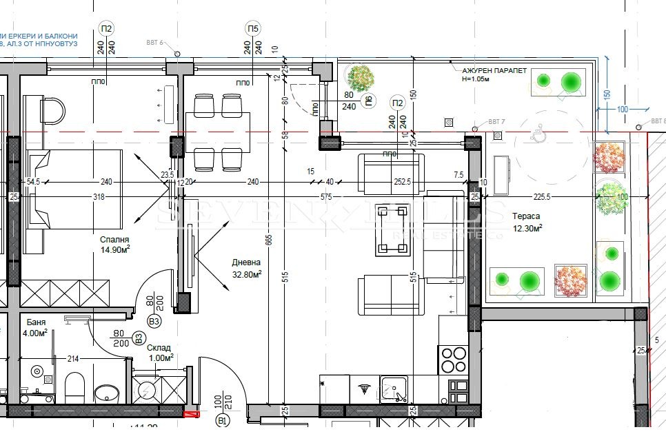
Апартаментът, който предлагаме, е с обща застроена площ от 71.34 кв.м. и е с разположен на пети етаж от общо шест, със следното разпределение: всекидневна с кухня, една спалня, баня с тоалетна, склад и тераса.
Разполагаме с различни по големина, разпределение и изложение апартаменти в сградата! Има възможност за закупуване на паркоместа (30,000 евро) и гаражи (50,000 евро).
За повече информация или оглед се обадете на посочения в обявата телефон за контакт.
Отговорен брокер:
Иван Генев







