Просторен двустаен апартамент с Акт 16, обзаведен, с възможност за паркомясто
Описание:
Екстра Хоумс предлага за продажба просторен двустаен апартамент, разположен в модерна жилищна сграда с Акт 16 и асансьор.
Имотът е изцяло обзаведен и готов за нанасяне, което го прави отличен както за живеене, така и за инвестиция.
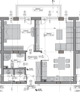
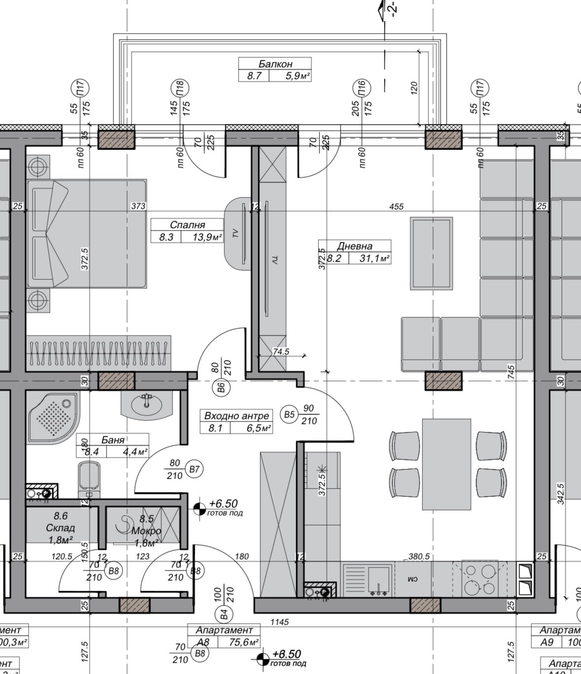
Апартаментът е с чиста площ от 75,6 кв.м, а с общите части е 88 кв.м. Намира се на 2-ри етаж от 4 в добре поддържана сграда.
Разпределение:
просторно входно антре 6,5 кв.м
голяма дневна с кухня и трапезария 31,1 кв.м
спалня 13,9 кв.м
тераса 5,9 кв.м
мокро помещение
отделно складово помещение
Към имота има възможност за закупуване на външно паркомясто на цена 10 000 евро.
В сградата разполагаме и с други апартаменти, както завършени до ключ, така и на шпакловка и замазка.
Предлагаме безплатно съдействие при изготвяне и одобрение на ипотечен кредит.
Цена: 199 900 евро
За повече информация и огледи, моля цитирайте код: 1138.







