БИЛДИНГ БОКС предлага за продажба двустаен апартамент в кв. 'Малинова долина', близо до арката на НСА 'Васил Левски'.
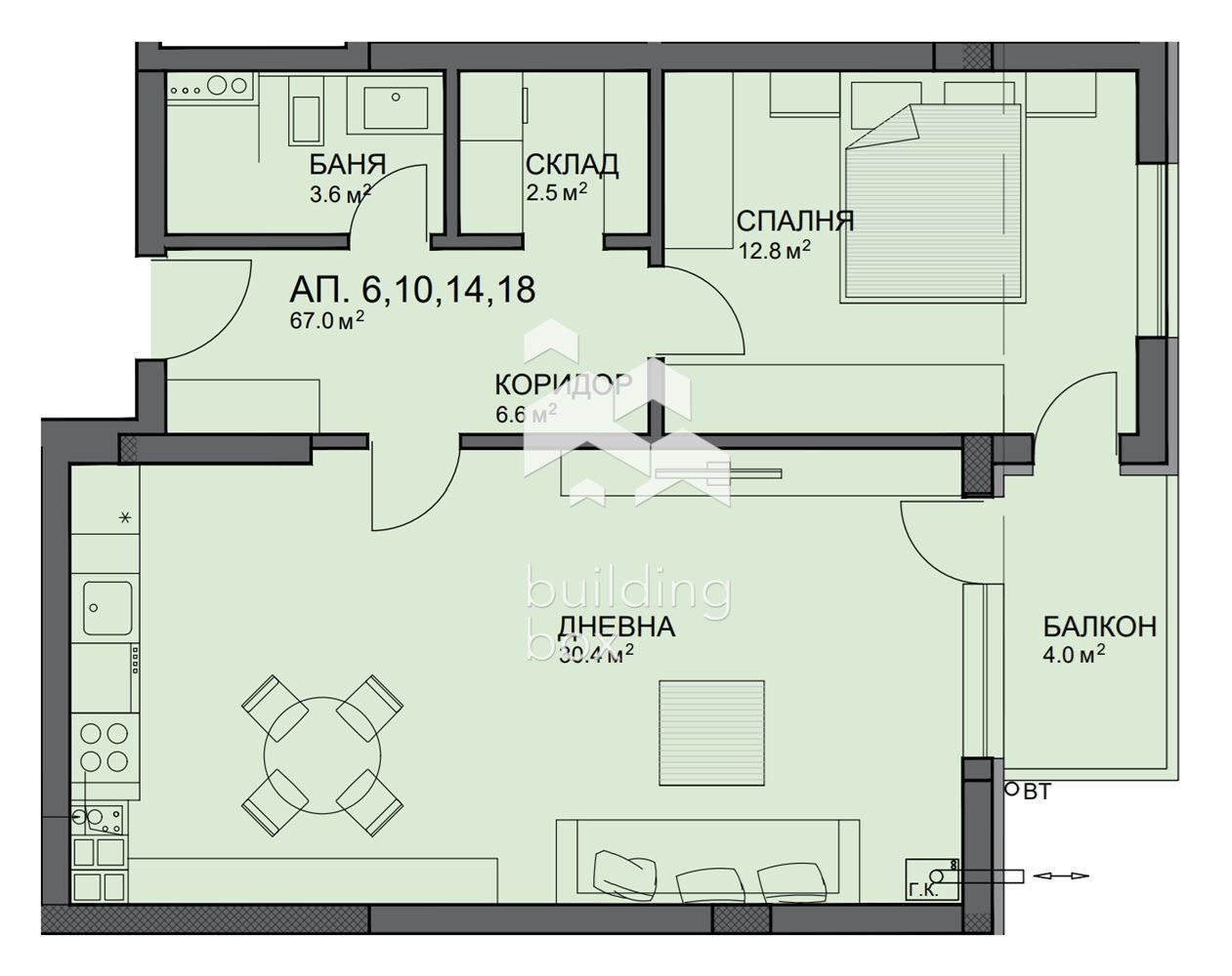
Апартаментът е със застроена площ 67,00 кв.м, с функционално разпределение, позициониран на четвърти етаж oт общо седем. Състои се от дневна с кухненски бокс, спалня, баня с тоалетна, склад и лоджия. Отоплението е на Газ. Изложението е изток.
Апартаментът се продава на шпакловка и замазка!
С четири сгради зад гърба си и много доволни клиенти, инвеститорът предлага качество на строителството и точно спазване на сроковете за изпълнение!
Сградата е с Акт 15 и ще бъде завършена до три месеца.
Има възможност за покупка на подземни гаражи и паркоместа, както и на външни паркоместа.
БИЛДИНГ БОКС предоставя безплатна консултация и съдействие при финансиране на избрания от Вас имот.
Оферта 13778







