Открийте мястото, където ще се чувствате у дома от първия момент.
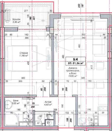
Титан Пропъртис офис - Бул.България с радост предлага на Вашето внимание двустайно жилище за продажба в кв. Овча Купел. Жилището е със застроена площ 51,36 кв.м., разположено на 2-ри етаж от общо 10 етажа в нова сграда на етап Акт 14, която ще бъде въведена в експлоатация (Акт 16) края на 2026 г. Изложението Изток/Юг осветява помещенията през целия ден. Разпределението включва входно антре, дневна с трапезария и кухненски бокс, спалня, складова ниша, баня с тоалетна и балкон.Отоплението е с газ, което допринася за ефективен разход през зимата. Жилището се издава с прекарани изводи и предвидени стойки за климатична система. Имотът е на шпакловка и замазка, което позволява довършване и обзавеждане изцяло по ваш вкус.
Апартаментът е част от модерен жилищен проект от затворен тип. Локацията съчетава спокойна градска среда с удобен достъп до ключови пътни артерии и бърза връзка с центъра на града. Комплексът се състои от няколко самостоятелни сгради с модерна архитектура, газификация, изградена система за климатизация, по два асансьора във всеки вход, собствен трафопост и канализация. Предвидени са и допълнителни удобства като зона за спорт и релакс със СПА, фитнес и ресторант, както и пешеходна и велосипедна алея в близост до реката подходяща за разходки, спорт и отдих.
В близост до имота ще намерите:
- Училище: ЧОУ 'Томас Едисън' на 443 метра
- Училище: Професионална гимназия по електротехника и автоматика на 337 метра
- Банка: Банка ДСК на 423 метра
- Банкомат: ATM - Банка ДСК на 423 метра
- Медицински център: Медицински Център Престиж - София на 477 метра
- Медицински център: Ортогин на 419 метра
- Трамвайна спирка: Кв. Павлово на 431 метра
- Трамвайна спирка: Кв. Овча купел на 471 метра
'С нас, вашето търсене на имот завършва с усмивка.'
За оглед на това и други атрактивни предложения, не се колебайте да ни потърсите на посочения телефон или да ни изпратите данните си чрез формата за запитване на сайта.
Реф. номер: 2105769.



