Translations in other languages:
All real estate ads published on imot.bg have been translated into English and published on the partner site
Получихте нова обява по филтър





Промяна на цена на наблюдавана обява


стара цена
нова цена
imot.bg – обяви за продажби и наеми на имоти
Сайт за имоти №1
Translations in other languages:
All real estate ads published on imot.bg have been translated into English and published on the partner site
ДОБАВИ ОБЯВА Редакция на обява
Начало Добави обява Търсене Агенции Новини Кредити Вход / Регистрация
Продава 2-СТАЕН
град Пловдив, Тракия
125 000 €
244 478.75 лв.

(1 761 €, 3 444.22 лв./m2)
Не се начислява ДДС
История на цената
Публикувана в 14:11 на 11 март, 2026 год.
Обявата е посетена 44 пъти.
Площ:
71 m2
Строителство:
Тухла, Ще бъде въведен в експлоатация 2026 г.

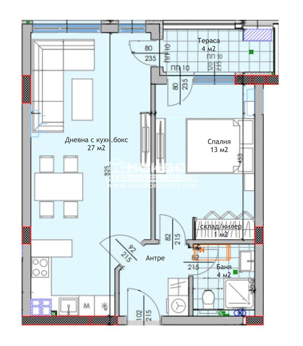
Описание на имота:


Оферта 67967 - Предлагаме ви възможността да закупите вътрешен двустаен апартамент в един от най-обещаващите проекти за Жилищен комплекс в квартал Тракия, проектиран през последните години. Жилището се състои от дневна с трапезария и кухненски бокс - 27кв.м., самостоятелна спалня 13кв.м., баня с тоалетна, входно антре с място за гардероб, килер/перално помещение и една тераса обща за двете стаи. При проектирането е заложено на функционални жилища с просторни стаи, високо качество на изпълнение с материали от най-висок клас, като обектът се изпълнява от една от наложилите се на пазара строителни компании с безупречен имидж. Комплексът е разположен е в самото сърце на кв. Тракия, който е с най-добре развита инфраструктура, в непосредствена близост до детски градини, училища, паркове, обществен транспорт и бърз и лесен достъп към централната част на града. Комплексът разполага с внушителните 13 700м2 вътрешен озеленен двор, в който има детски площадки, стрийт фитнес и зони за отдих. Паркоместата са обезпечени на 100%, има изградени системи за видеонаблюдение и контрол на достъп. В
Особености
Тухла
За контакт:
0896720456

Този имот се предлага само на частни лица
Брокер:
Ирена Галинчева
0896 720 456
Още оферти от брокера: Продава | Дава под наем | Купува | Наема
Агенция:
КОНДОР - НЕДВИЖИМИ ИМОТИ
0897 777 032 , 0893 554 200;
КОНДОР - НЕДВИЖИМИ ИМОТИ logo
Медал за прослужено време
В imot.bg от 2004 г.
kondor.imot.bg
Адрес:
област Пловдив, гр. Пловдив, ул.Петко Д.Петков 23,ет.4 /до ТЦ Гранд/
http://www.kondorimoti.com
ИЗПРАТИ ЗАПИТВАНЕ
ИЗПРАТИ ЗАПИТВАНЕТО

Продава 2-СТАЕН
град Пловдив, Тракия
Обява: 1b177323106774079

125 000 €
244 478.75 лв.
История на цената
(1 761 €, 3 444.22 лв./m2)

Не се начислява ДДС
ЗАПАЗИ ОБЯВАТА

Местоположение: град Пловдив, Тракия

Виж още имоти от Пловдив или още Двустайни Апартаменти в Пловдив
Допълнителни данни за имотите в района и сравнение с други райони

Покажи

Период

и 3 месеца

* Средните цени са определени чрез медианна стойност
Още обяви в imot.bg
Обяви за имоти Продажби град Пловдив Тракия Двустайни апартаменти
Въпроси и предложения към imot.bg
КОНТАКТИ | SMS КОДОВЕ | ПОМОЩ | ОБЩИ УСЛОВИЯ | РЕКЛАМА | ЗАЩИТА НА ЛИЧНИТЕ ДАННИ | КАРТА НА САЙТА |
Резон Медия | Автомобили | Работа | Новини | Обяви 2002-2026 ® Copyright imot.bg
© imot.bg ползва и препоръчва хостинг услугите на Bulinfo.net
Следвайте ни в: