Двустаен апартамент в модерна бутикова сграда кв. Банишора. Без комисион от КУПУВАЧА!
Екипът на YoHome недвижими имоти има удоволствието да ви представи двустаен апартамент в нова бутикова жилищна сграда с модерна архитектура и елегантна окачена фасада, разположена в комуникативния и предпочитан за живеене район кв. Банишора.
Сградата е в етап на строителство преди Акт 14, като завършването и получаването на Разрешение за ползване е планирано за лятото на 2027 г. Проектът включва ограничен брой апартаменти, което осигурява спокойна жилищна среда и усещане за повече комфорт и пространство.
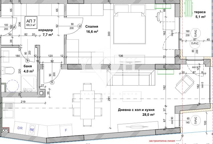
Апартаментът се намира на 2-ри етаж от 5-етажната сграда,и е с обща площ 83.80 кв.м, от които 69.30 кв.м чиста жилищна площ. Към имота има самостоятелно складово помещение в сутерена на сградата, което осигурява допълнително удобство за съхранение.
Функционално разпределение:
антре
дневна с кухненски бокс
спалня
баня с тоалетна
тераса
Жилището е с източно изложение, което осигурява естествена светлина и уютна атмосфера през по-голямата част от деня.
Сградата се изпълнява с качествени строителни материали и модерни фасадни решения, гарантиращи енергийна ефективност и дългосрочна стойност на имота.
Има възможност за закупуване на подземно паркомясто към имота.
Локация:
Имотът се намира на тиха уличка в кв. Банишора район с бърз достъп до центъра на София. В близост са бул. Христо Ботев, бул. Мария Луиза, метростанции, спирки на градски транспорт, магазини, училища и детски градини. Районът съчетава удобна инфраструктура и спокойна градска среда.
Имотът е подходящ както за собствено ползване, така и за инвестиция с отличен потенциал за отдаване под наем.
За повече информация и организиране на оглед свържете се с нас и цитирайте кода на обявата 78000
Разгледайте и другите ни предложения на страницата ни: www.yohome.bg







