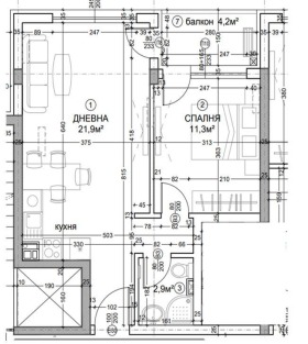
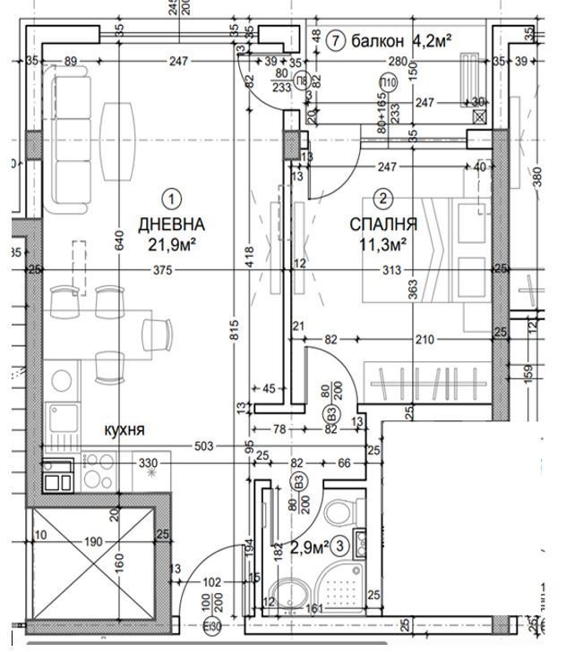
Имоти Комфорт Ви предлага 2-стаен апартамент на ТОП локация в кв. Дружба-2. В близост до големи хранителни магазини, училище, детска градина, детски площадки, зелени площи, спирки на градски транспорт и на метри от Метростанция ИЕЦ. Имотът е 61 кв.м. и разполага с входно антре, дневна с кухненски бокс, спалня, баня с тоалетна, балкон. Към апартамента има прилежащ 4 кв.м. склад на етажа. Намира се на ет. 3 от 5 в чисто нова тухлена кооперация с акт 16 от февруари, 2026г. Жилището е изцяло вътрешно и много светло, със североизточно изложение. Апартаментът се продава по БДС (на шпакловка и замазка) и е подходящ както за живеене, така и за инвестиция.
🏦 Предлагаме съдействие и консултация при ипотечно кредитиране. Работим с водещи банки и ще Ви помогнем да изберете най-добрите условия за кредит според Вашите възможности.
Comfort Properties offers a 2-room apartment in a TOP location in Druzhba-2 district. The property is close to large grocery stores, a school, a kindergarten, playgrounds, green areas, public transport stops, and only meters away from the IEC Metro Station.
The property has an area of 61 sq.m. and consists of an entrance hall, living room with kitchenette, bedroom, bathroom with toilet, and a balcony.
The apartment also includes a 4 sq.m. storage room on the same floor.
It is located on the 3rd floor out of 5 in a brand new brick residential building, which received Act 16 in February 2026.
The apartment is entirely internal and very bright, with a northeast exposure.
The property is being sold according to BDS standard (unfinished plastered walls and cement screed) and is suitable both for living and as an investment.
🏦 We offer assistance and consultation for mortgage financing. We work with leading banks and will help you choose the best loan conditions according to your financial capabilities.







