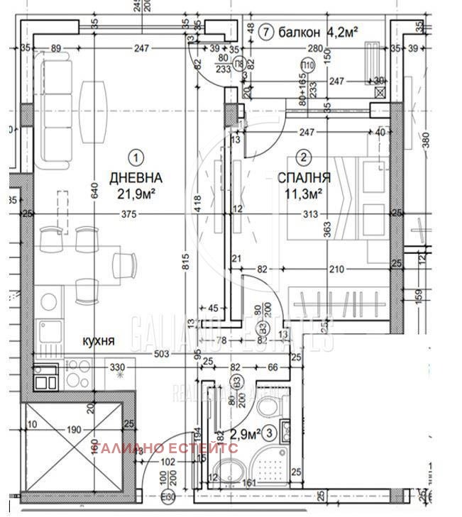
Galiano Estates предлага за продажба функционален двустаен апартамент с площ 61 кв.м и прилежащ склад 4 кв.м, разположен на 3-ти етаж (2-ри жилищен) в нова 5-етажна тухлена сграда с Акт 16 от февруари 2026 г.
Имотът има следното разпределение: дневна с кухненски бокс; спалня; баня с тоалетна; входно антре; балкон
Характеристики
? Състояние: шпакловка и замазка
? Изложение: североизток
? Вътрешен апартамент светъл и функционален
? Отлично разпределение
? Подходящ както за живеене, така и за инвестиция
Локация
Имотът се намира на пешеходно разстояние от Метростанция, в близост до спирки на градски транспорт, училища, детски градини, големи хранителни магазини и зелени площи.
Оферта 6891







