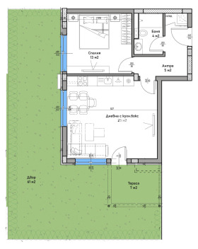
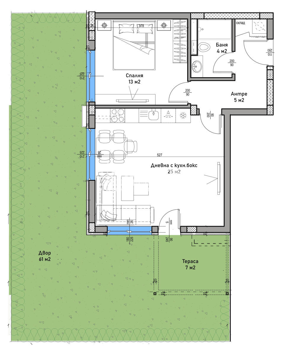
Оферта 68946 - БЕЗ КОМИСИОННА ОТ КУПУВАЧА!!! Представяме Ви изключителна възможност да притежавате дом в елегантна, модерна сграда разположена в район с ниско строителство, тишина и много зеленина.Комплексът разполага с големи тревни площи, красиво озеленяване и оформени зони за отдих. Просторният двор създава среда, подходяща както за семейства с деца, така и за хора, търсещи спокойствие след динамичния градски ден. Двустаен апартамент със собствен двор- състои се от входно антре с място за перално помещение, дневна 25кв.м. с трапезария и кухненски бокс, една самостоятелна спалня 13кв.м., баня с тоалетна и една тераса към дневната.
Сградата е проектирана с внимание към всеки детайл само 6 просторни апартамента, разпределени на 3 етажа, гарантиращи спокойствие, уединение и висок стандарт на живот.
Жилищата се отличават с:
- Правилни форми на помещенията
- Просторни дневни с френски прозорци
- Светли спални с удобни ниши за гардероби
- Тераси с приятни гледки към зелени площи
- Оптимално използване на всеки квадратен метър
- Варианти за партерни апартаменти със собствен двор
Разпределенията са проектирани така, че да осигурят максимален комфорт и практичност в ежедневието без излишни коридори и загубени пространства. Обекта се намира в район с ниско застрояване, което гарантира:
-Повече светлина
- Спокойствие и липса на презастрояване
- Усещане за простор
- Среда с атмосфера на квартал от къщи
Комплекса предлага двойно подсигурени паркоместа (200%) за живущите, с удобна топла връзка към подземен паркинг.
Технически параметри и предимства:
Зарядни станции за електрически автомобили
Смарт камери и контролиран достъп
Покрив: прав покрив с хидроизолация + 10 см стиропор, замазка и допълнителна битумна хидроизолация
Дограма: алуминиева дограма ETEM с троен стъклопакет четири сезона
Висококачествена шумоизолация между плочата и замазката на всеки етаж
Климатици със сплит система
Общи части: италианска мазилка и италиански гранитогрес
Само 10% общи части към всеки имот
Възможност за схема 20% / 80% плащане
Тук ще откриете баланса между градските удобства и спокойствието на самостоятелен дом. Това е проект за хора, които търсят не просто апартамент, а дом с характер, спокойствие и дългосрочна стойност.







