Предлагаме Ви двустаен апартамент за продажба в квартал Виница, град Варна.
Жилището ще бъде разположено на втори етаж в предстояща за изграждане четириетажна сграда с асансьор и контролиран достъп.
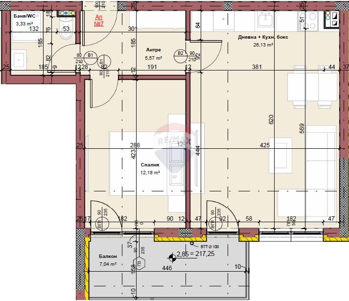
На чиста площ от 63,75 кв.м. са разпределени:
* всекидневна с кухненска част /26,13 кв.м./ с излаз на тераса;
* спалня /12,18 кв.м./ с излаз на тераса;
* баня с тоалет в едно помещение /3,33 кв.м./;
* входно антре /5,57 кв.м/;
* тераса /7,04 кв.м./.
Към имота има има 15,77 кв.м. прилежащи идеални части от общите части на сградата и от дворното място, в което е построена.
Към имота има възможност за покупка както на паркомясто в закрит или открит паркинг, така и на гараж.
Сградата е разположена в тих и зелен район, който е подходящ за целогодишно живеене, като предлага спокойствие и чист въздух. В същото време, тя е в близост до основни транспортни връзки, магазини и други удобства, които ще направят ежедневието ви удобно и лесно.
В сградата има свободни и други двустайни и тристайни жилища.







