HOME PLACE недвижими имоти Ви предлага за продажба двустаен апартамент в новострояща се сграда в кв. Христо Ботев.
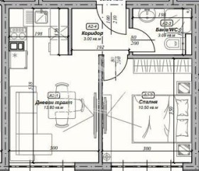
Разпределението е следното:
-входно антре
-дневна с кухненски бокс
-спалня
-баня с тоалет
Има възможност за закупуване на ПАРКОМЯСТО, външно или подземно.
Започната е първа копка, очаква се да бъде въведена експлоатация през 2028г.
Подходящ е както за лично ползване, така и за отдаване под наем с цел инвестиция.
В близост до автобусни спирки, училища и хранителни магазини.
Предлагаме Ви гъвкави схеми на плащане, както и съдействие за банково кредитиране.
За повече информация и огледи, цитирайте кода: 32038
HOME PLACE-НИЕ РАБОТИМ ЗА ВАС!







