БИЛДИНГ БОКС представя сграда, която се отличава с просторни жилища с перфектно разпределение, нисък процент общи части и високо качество на строителството, изпълнено от опитни професионалисти, които осигуряват сигурност и комфорт за бъдещите обитатели.
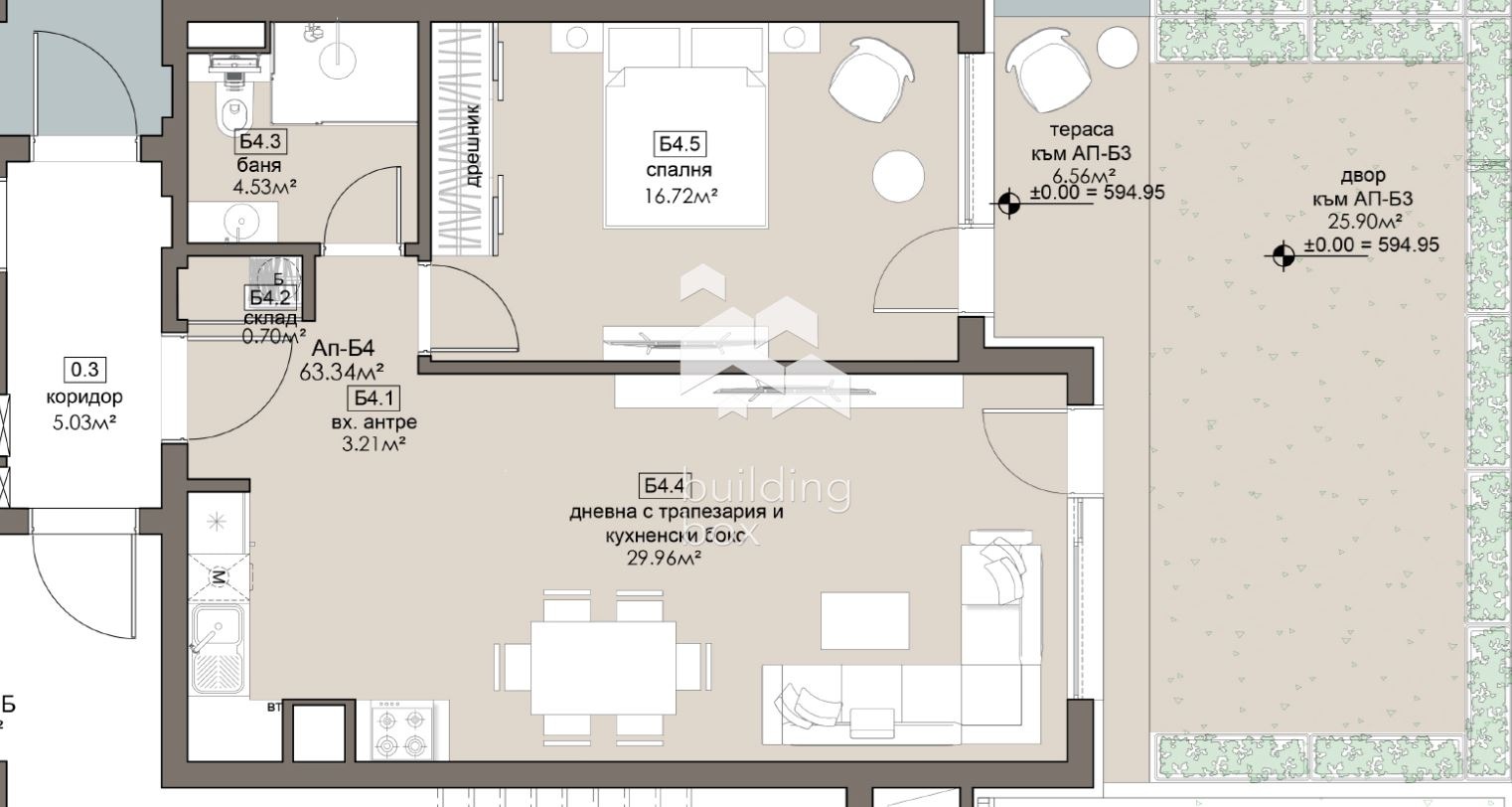
Имотът е със застроена площ от 63.34 кв.м., а разпределението му е, както следва: входно антре, дневна с кухненски бокс, спалня, склад, баня с тоалетна и тераса/веранда и двор 26 кв.м. Изложението на имота е запад. Намира се на партерен етаж от общо 9 етажа. Отоплението е на ТЕЦ, ще има изводи за климатици и бойлер.
Жилищният комплекс е изпъкващ сред сградите в района с иновативен дизайн, модерна фасада и перфектни архитектурни решения.
Ще предостави комфорт за бъдещите си собственици и всички необходими удобства за днешния градски живот.
При изграждането на проекта ще бъдат използвани висококачествени материали и технологии.
Сградата е на междинни плочи и ще бъде завършена 2027 г.
Местоположението на сградата е в непосредствена близост до спирки на градски транспорт, магазини и супермаркети, детски градини, училища, много зелени междублокови пространства и 'Западния парк'. Локацията има бърз излаз до Околовръстния път.
БИЛДИНГ БОКС предоставя безплатна консултация и съдействие при финансиране на избрания от Вас имот.
Оферта 18551







