Агенция АРГУС продава богата гама от 2-стайни апартаменти в новострояща се жилищната сграда, находяща се в най-перспективния и престижен райн на Младост 4, териториално срещу Бизнес парк София, заключен между бул. Александър Малинов , Околовръстен път и Американски колеж . Сградата ще има панорама към централната /южна/ и западна част на Витоша и към София. Тя е в непосредствена близост до спирките на автобуси 111, Х9 и Х10 и отстои на 815 м. от метростанция Бизнес Парк , 735 м. от Бизнес Парк - София, 782 м. от ИКЕА и на 983 м. от РИНГ МОЛ . В момента в този район активно се изгражда отлична улична инфраструктура. Сградата ще се състои от две подземни нива с общо РЗП 2264 кв.м и 9 надземни етажа с обща РЗП от 6292.36 квм.
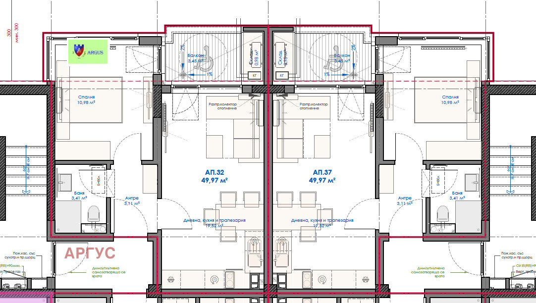
Предлагаме следните 2-стайни апартаменти: снимка /7/ 61 кв.м., чиста ЗП 49.97 кв.м., северно изложение, наличност на етажи 3,4 и 7; цена 149 000 EUR.
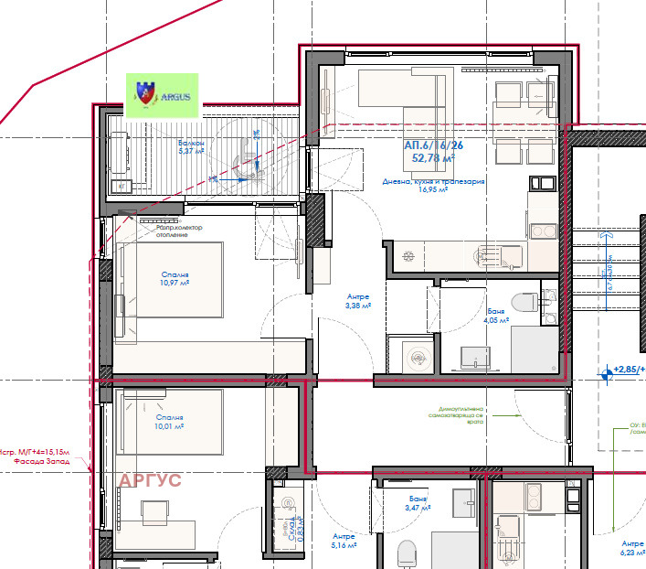
Снимка /8/ 65 кв.м., чиста ЗП 52.78 кв.м., изложение: запад и север, наличност само на етаж 2; цена 158 000 EUR.
Снимка /9/ 75 кв.м., чиста ЗП 61.04 кв.м., изложение: юг, наличност на етажи 2, 3, 4 и 5; цена 178 000 EUR.
Снимка /10/ 76 кв.м., чиста ЗП 62.04 кв.м., изложение: юг/ изток, наличност на етажи 2, 3, 4 и 5; цена 184 000 EUR
Снимка /11/ 80 кв.м., чиста ЗП 65.10 кв.м., изложение: изток/ серев, наличност на етажи 2, 3; цена 192 000 EUR.
Сградата в момента е на етап изливане на подложен бетон на първо подземно ниво. А 16 въвеждане на сградата в експлоатация се очаква около ноември месец 2028 г. Сградата ще бъде захранена с газ, луксозни общи части, външни и вътрешни стени тухла Винебергер ; външни врати противовзломна, блиндирана СОЛИД ; външна дограма- алуминиева с прекъснат термомост, обков, троен стъклопакет, минимум 36 мм. и двуплоскостно отваряне във всяка стая; фасада цялостна топлоизолационна система на Баумит -Австрия с топлоизолация минимум 10 см. ЕРS еструдиран полистирол, изцяло завършена с минерална мазилка, финишно покритие с Еталбонд на кота 0/нула/, облицовка врачавски камък, гранит/гранитогрес/. Вертикална планировка и озеленяване по проек.
Офертата е за директни клиенти!
Младен Пейчев 0888 871 885; 0878 871 885







