ДВУСТАЕН-АКТ14-ВАРНА
📐87 КВ.М.
📞0876 59 00 79
БЕЗ ТАКСА ПОДДРЪЖКА
Имоти Премиер ви представя функционален 2-стаен апартамент в ж.к. Владислав Варненчик 1, гр. Варна.
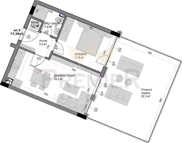
Имаме удоволствието да ви представим този отличен имот 2-стаен апартамент с обща площ 87 кв.м., ново строителство (2026 г.), разположен в един от най-търсените и динамично развиващи се квартали на морската столица ж.к. Владислав Варненчик 1. Имотът впечатлява с правилни форми, светли помещения и открита тераса с достъп от дневната и спалнята, осигуряваща допълнителен комфорт и спокойствие. Подходящ е както за лично ползване, така и за инвестиция.
Състои се от:
Антре с място за гардероб
Всекидневна с кухненски кът и зона за хранене
Спалня
Баня с тоалет
Килер/склад
Открита тераса с излаз от всекидневната и спалнята
Разпределение:
Функционално организирани помещения, без преходи; терасата е обща за двете стаи и осигурява приятна зона за отдих на открито
Предимства на имота:
Ново строителство (2026 г.) и модерна архитектура
Отлично разпределение с практичен килер за съхранение
Просторна тераса с двоен излаз
Подходящ за живеене или отдаване под наем с очаквана добра доходност
📍Локация и удобства наблизо:
Развит градски район с удобен достъп до супермаркети, училища, детски градини, медицински услуги и спирки на градския транспорт
Бърза връзка към центъра на Варна и основни пътни артерии; в близост има паркови зони и места за спорт
✨Перфектен избор за купувачи, които търсят просторен, светъл дом в утвърден район на Варна с всички градски удобства.
За повече информация се свържете с нас на посочения телефон и цитирайте код 380020



