Реф.39185
? Агенция Авеню Риъл Естейт с голямо удоволствие Ви представя: Двустаен апартамент в модерна жилищна сграда ново строителство, разположена на тихо и спокойно място в гр. Асеновград.
Сградата се отличава с модерна архитектура, качествено строителство и внимание към детайла, осигуряващи комфорт, сигурност и дългосрочна стойност на имота.
?? Без комисионна за купувача!
? Характеристики на имота
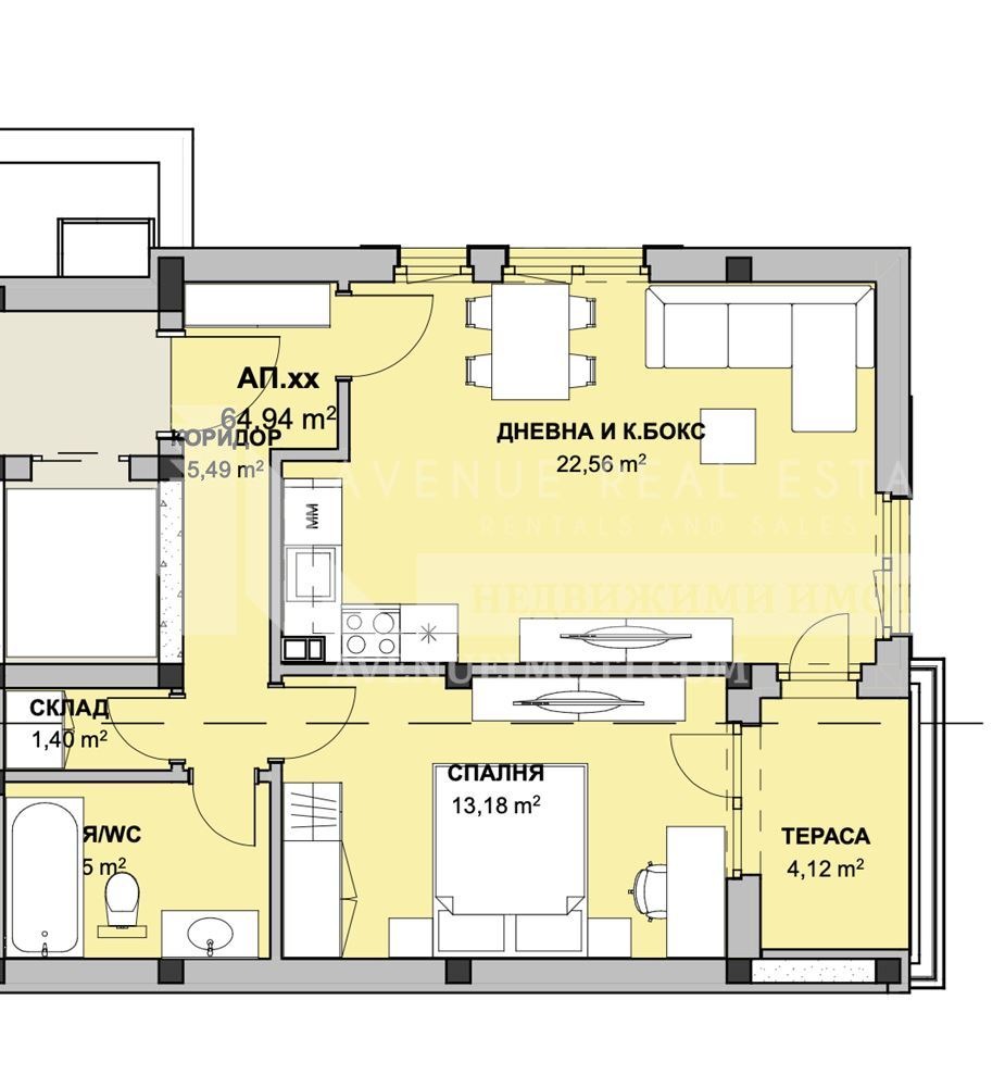
Обща площ: 76 кв.м.
Чиста площ: 64.94 кв.м.
Етаж: 4 от 6
Строителство: Тухла (ново строителство)
? Предимства на имота
? функционално разпределение
? подходящ както за живеене, така и за инвестиция
? модерна жилищна сграда
? гъвкави схеми на плащане
? Локация
Имотът се намира в комуникативен район на гр. Асеновград, в близост до магазини, ресторанти, училища, детски градини и спирки на градски транспорт, което осигурява удобство и бърз достъп до всичко необходимо за ежедневието.
? Агенция Авеню Имоти Ви предлага професионално кредитно посредничество чрез Credit Center при ипотека, потребителски кредит и рефинансиране!
? Услугата е изцяло безплатна!
? Изготвяне на няколко оферти от водещи банки!
? Най-изгодни условия спрямо Вашия профил!
???? Не е необходимо да се разкарвате във всеки клон на различни банки!







