Имоти Премиер и представя стилен двустаен апартамент с отлична локация в кв. Витоша, гр. София 🏙️
АКТ 15
25% сега, останалото след АКТ 16
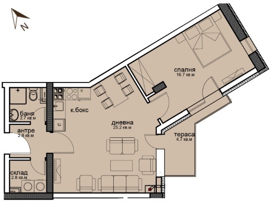
Имаме удоволствието да ви представим този отличен 2-стаен апартамент с обща площ 82 кв.м., разположен в един от най-предпочитаните и динамично развиващи се южни райони на столицата кв. Витоша.
Сградата е с модерна визия, асансьор и планирано завършване през лятото на 2026 г. 🗓️ Имотът съчетава комфорт, функционално разпределение и тишина, като същевременно осигурява бърз достъп до ключови пътни артерии и градски удобства.
Имотът впечатлява с пространство и светлина, подходящ за съвременен градски живот.
Състои се от:
🛋️ Светла всекидневна с кухня и кът за хранене
🛏️ Комфортна спалня
🛁 Баня с тоалетна
🌿 Балкон за сутрешно кафе и релакс
Основни параметри:
📐 Площ: 82 кв.м.
🚪 Брой стаи: 2
🛌 Брой спални: 1
🚿 Бани с тоалетни: 1
🛗 Асансьор: Да
🌤️ Балкони:
Предимства на имота:
🧱 Ново строителство (2026 г.) с модерни фасади и общи части
🏢 Сграда с асансьор и контролиран достъп
🚗 Отлична свързаност с бул. Симеоновско шосе, Околовръстен път, Ring Mall и Paradise Center
🚌 Удобен градски транспорт, близост до магазини, заведения и услуги
Описание на квартала:
Кв. Витоша предлага спокойствие, зеленина и усещане за простор, страхотна гледка към Витоша, в съчетание с всички предимства на града.
Районът е предпочитан заради новото строителство, бързия достъп до центъра и близостта до планината Витоша. 🌳⛰️
✨ Перфектен избор за двойка или младо семейство, което търси качествен дом с перспектива и удобство.
📍 Не просто апартамент, а уютно и функционално пространство в престижен южен квартал на София.
374669







