ЖИЛИЩЕТО СЕ ПРЕДЛАГА БЕЗ КОМИСИОННА ОТ КУПУВАЧА! ЦЕНИ ОТ ИНВЕСТИТОР!
Представяме Ви двустаен апартамент, който е част от сграда в затворен комплекс. Намира в югозападната част на столицата София, в подножието на планините Витоша и Люлин.
Есента на 2026 г. се очаква да бъде издаден акт. 14, а до края на 2028 г. е предвидено всички сгради в комплекса да ъдат въведени в експлоатация акт 16.
Комплексът се състои от четири жилищни сгради с подземен паркинг и паркова среда. Комплексът е с контролиран достъп, денонощна охрана и ефективна система за видеонаблюдение, осигуряващи на живущите сигурност и спокойствие.
Апартаментите са проектирани с вкус в съвременен стил и дизайн. Вътрешното пространство е екологично съобразно и проектирано с предвидени зони за разходка и развлечение, BBQ, отдих и прекрасна гледка към Витоша. Комплексът има перфектна локация в непосредствена близост до бул. Цар Борис III и бърз достъп до околовръстен път, супермаркети, молове, училища, болници и обществен транспорт.
Всички апартаменти в сградите са ориентирани към благоприятните по отношение на слънчевото огряване посоки, проектиран е подземен гараж под целия парцел.
Използвани са висококачествени материали: тухли Wienerberger POROTHERM 25 N+F с дебелина 25см. Фасадата е с висока устойчивост на атмосферни влияния и високо ниво на енергоефективност, топло и влагоизолация, пожароустойчивост и дълготрайност. Дограмата е 5-камерна алуминиева с троен стъклопакет, нискоемисионно Ка стъкло със слънцезащитно покритие 4 сезона, фолиран с цвят по каталог. Асансьорите ще бъдат с капацитет 6 пасажера. Врати EI90 / КРО В врати в подземния гараж към стълбищните клетки. Врати EI45 / КРО В врати на апартаменти с достъп директно в обема на стълбището.
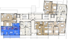
Предложеният за продажба апартамент е двустаен, среден и е със следното разположение:
1. Антре.
2. Дневна с кухненски бокс.
3. Спалня.
4. Баня с тоалетна.
5. Към апартамента има двор, на който се излиза от дневната и спалнята.
Чистата застроена площ на жилището е 67,25 кв.м., а с общите части 80,12 кв.м.
Обявената цена е валидна при следната схема на плащане: 30% на Предварителен договор и 70% на Акт 16.
Налична е възможност за извършване на довършителни дейности до ключ от инвеститора, което е възможно да се договори допълнително!!!
В комплекса предлагаме и други апартаменти с различна квадратура, изложение и етажност!!!
Агенция Интеллигард си партнира със строителни фирми, които са се доказали на пазара с високо качество на строителство.
Предлагаме юридически, инженерни услуги и всичко необходимо в цялостния процес по избор,покупка, продажба на един имот или отдаването му под наем, така че клиентите да бъдат сигурни и спокойни, че правят правилния избор в условията на техния защитен интерес.
Разполагаме с възможности и да окажем необходимото съдействие на клиента, в случай, че има нужда от банково финансиране.







